Prins Hendrikstraat 7

2518 HD, Den Haag (Zeeheldenkwartier)

Vraagprijs

€ 2.500 p.m. ex.

Omschrijving

Verhuurd

Zeeheldenkwartier. Op deze populaire locatie ligt deze prachtige en zojuist volledig en kwalitatief hoogwaardig gerenoveerde parterrewoning met achtertuin en een energielabel A+. Gelegen zowat naast het gezellige Prins Hendrikplein, waar u kunt genieten op de bankjes of bij de restaurants. Ruim winkelaanbod binnen loopafstanden goed openbaar vervoer.

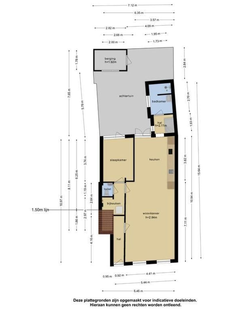
Indeling:
Entree appartement met hal en garderoberuimte; toegang woonkamer ca. 10.94x4.41/3.57 met achterin de nieuwe complete open keuken met ingebouwde inductie kookplaat, oven, afzuigkap, koel-/vriescombinatie, vaatwasser; Eveneens aan de achterzijde van de woonkamer zijn openslaande deuren naar de tuin; tussenhal met opstelplaats voor de warmtepompinstallatie, en bergruimte; toiletruimte; toegang tot achterslaapkamer ca. 3.74x2.68 met deur naar de tuin. Achter de woonkamer is de 2-laags achterbouw met de badkamer ca. 2.7x1.96 met inloopdouche, wastafelmeubel en aansluiting voor de wasmachine; trap naar de bovenetage met overloop en kamer van ca. 2.75x2.01.
Beschutte betegelde achtertuin ca 7.65x7/4.35 op het Noord/westen georiënteerd (middag zon)en met buitenberging ca. 2.82x1.78.

Details:
- Gehele woning voorzien van vloerverwarming en in alle kamers parketlook visgraat pvc-vloer
- A+ label dus zeer lage energiekosten
- T.b.v. een gezond binnenklimaat is in alle vertrekken stille en energiearme (A+) ventilatie met automatische luchtverversing op basis van Co2 meting” (Hier is bewust flink in geïnvesteerd)”.
- Plafonds, muren en trap zijn geluid geïsoleerd
- Verlichting in alle vertrekken en boven het keukenblad
- Huurprijs exclusief kosten gas, electra, water
- Minimale huurtermijn twee jaar
- Borg 1 maand huur
- Geen huisdieren;
- Niet roken;
- Niet geschikt voor woningdelers of studenten;
- Bij vertrek professionele schoonmaak verplicht;
- Huisvestingsvergunning verplicht.

*** English text ***

Zeeheldenkwartier. This beautiful ground floor apartment with a backyard and A+ energy label is located in this popular location. Located almost next to the pleasant Prins Hendrikplein, where you can enjoy on the benches or at the restaurants. Wide range of shops within walking distance and good public transport.

Layout:
Entrance apartment with hall and wardrobe space; access to living room approx. 10.94x4.41/3.57 with a new open kitchen at the back with built-in induction hob, oven, extractor hood, fridge/freezer, dishwasher. Also at the rear of the living room are French doors to the garden; intermediate hall with space for the heat pump installation, storage space; toilet room; access to rear bedroom approx. 3.74x2.68 with door to the garden. Behind the living room is the 2-storey rear extension with the bathroom approx. 2.7x1.96 with walk-in shower, washbasin and connection for the washing machine, ; stairs to the top floor with landing and room of approx. 2.75x2.01.
Sheltered tiled backyard approx. 7.65x7/4.35, oriented to the north/west and with outdoor storage approx. 2.82x1.78.

Details:
- Almost yellow house with underfloor heating and V-bone PVC parquet look floor
- A+ label so very low energy costs
- For a healthy indoor climate is quiet and low-energy (A+) ventilation in all roomswith automatic air renewal based on Co2 measurement (a sgnificant investment has been made in this)
- Ceilings, walls ans stairs are sound insulated
- Lighting in all rooms and above kitchen countertop
- Rent excluding costs of gas, electricity, water
- Minimum rental period two years
- Deposit 1 month's rent
- No pets allowed
- No Smoking allowed
- Not suitable for home sharers or students
- Professional cleaning required upon departure
- Housing permit required


Download Brochure

Kenmerken

Huurprijs
€ 2.500 per maand ex.
Status
Verhuurd
Aanvaarding
Per direct

Bouw

Soort appartement
Benedenwoning, Appartement
Gelegen op
1e woonlaag
Soort bouw
Bestaande bouw
Bouwjaar
1890
Onderhoud binnen
Uitstekend
Onderhoud buiten
Uitstekend
Bijzonderheden
Beschermd stads- of dorpgezicht

Oppervlakten en inhoud

Woonoppervlakte
83m²
Perceeloppervlakte
132m²
Inhoud
274m³

Indeling

Aantal kamers
3
Aantal slaapkamers
2
Aantal badkamers
1
Aantal woonlagen
1

Energie

Energielabel
A+
Isolatie
Muurisolatie, Vloerisolatie, Dubbel glas, HR-glas
Verwarming
Vloerverwarming geheel, Warmtepomp, Warmte Terugwininstallatie

Buitenruimte

Ligging
Aan rustige weg, In woonwijk
Schuur
Vrijstaand steen

Garage


Locatie

[ { "address": "Prins Hendrikstraat 7", "zipCode": "2518 HD", "city": "Den Haag", "lat": 52.0834089, "lng": 4.2966229 } ]

BUURTINFORMATIE

Den Haag, Zeeheldenkwartier

Inwoners

6561
Woningen

11165
Inwoners

Koop / Huur


 62% Huur 
 29% Koop

Huishoudens

 Zeeheldenkwartier
t.o.v
 Landelijk
.



Eenpersoon
64% - 37.6%


Geen kinderen
18% - 29%


Met kinderen
19% - 33.4%

Leeftijdsopbouw in jaren

 Zeeheldenkwartier t.o.v
 Landelijk
.

Bekijk verloop van de zon

Uw browser ondersteunt geen WebGL

Afspraak of contact

Uw bericht is naar ons verzonden. Wij nemen zo snel mogelijk contact met u op.

Sorry, we kunnen helaas niet met zekerheid vaststellen of u een mens of een geautomatiseerde bot/spammer bent. Hierdoor kunnen we het formulier dat u heeft ingevuld niet verzenden. Probeer het opnieuw of neem direct contact op met de makelaar via e-mail.

Er is iets mis gegaan met het versturen van het formulier.
Controleer of u alle velden (goed) heeft ingevoerd en probeer het nog een keer.

recaptcha
reCAPTCHA
PrivacyTerms

Kantoor Zuiderpark - HaagWest
info@elzenaar.nl
+31703604807

Elzenaar Makelaarskantoor