Da Costastraat 101

2513 RR, Den Haag (Zeeheldenkwartier)

Vraagprijs

€ 550.000 k.k.

Omschrijving

Verkocht in 121 dagen.

Ja hoor, ook in Den Haag hebben we bijzondere woonobjecten en dan ook nog eens in het o zo gezellige Zeeheldenkwartier. Het betreft hier een begane grond appartement van maar liefst ca 147m2 !!! en met een plafondhoogte van ca 4m!! Deze woning maakt onderdeel uit van een voormalige pakhuis welke verscholen ligt achter de straat en via een poort te bereiken is. Het is in 2008 verbouwd tot een complex met met 6 royale appartementen

Het leuke aan deze woning is dat je niet gehouden bent aan de indeling die er nu inzit en de lichte binnenwand constructies met veel glas zo kunt wijzigen naar eigen inzicht. Thans beschikt dit appartement over 4 slaapkamers, een kleine badkamer en een super riante woonkamer.

Enige pluspunten:
- Voormalig pakhuis
- Industriële uitstraling
- Ruimte is eenvoudig anders indeelbaar
- Energielabel C

Indeling:
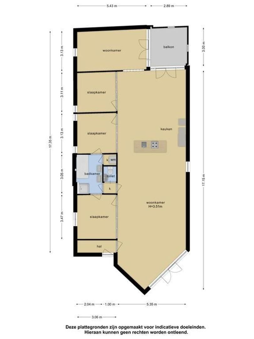
Via een poort in de straat kom je bij de entree van het complex. Royale centrale entree met trappenhuis. Entree appartement met hal/ bergruimte: zeer riante woonkamer ca. 17x5.35 met een kasseien vloer; openslaande deuren aan de voorzijde; in het midden geplaatste open keuken met ingebouwde apparatuur en aan de achterzijde openslaande deuren naar de patio/buitenruimte ca. 3x2.89 bereikbaar via openslaande deuren van de woonkamer en achterliggende slaapkamer; 4 slaapkamers met daglicht via bovenlichten ca. 3.47x3.06, 3.13x3.06, 3.11x3.06 en 5.43x3.13; tussenhalletje naar toilet en badkamer bereikbaar vanuit een tweetal slaapkamers ca. 3.05x2.05 met ligbad, douche, dubbele wastafel en ruimte voor wasmachine/droger.

Voor verdere maatvoering verwijzen wij naar de plattegrond.

Bijzonderheden:

- Bouwjaar 1887
- Woonoppervlakte ca. 147m2
- VVE bijdrage € 263,92per maand. Verdeeld in € 178,92 en € 85,-- onderhoud en overpadvergoeding poort.
- VVE is ver gevorderd met een vergunningsaanvraag voor dakterrassen voor iedere woning op het grote hoofddak. De bezwaarschriftenprocedure is reeds afgerond. Aanleg en aanpassingskosten van de constructie zijn voor de nieuwe eigenaar
- Energielabel C
- Projectnotaris: Lont & Lalmahomed Notarissen Den Haag
- Niet-bewoningsclausule door eigenaar van toepassing. As is, where is.
- De woning komt uit de huursector.
- In verband met het bouwjaar van de woning zal ongeacht de kwaliteit een ouderdoms- en materialenclausule in de NVM koopakte worden opgenomen
- Oplevering per direct

MEER INFORMATIE?
Op onze website www.elzenaar.nl staat de meest complete informatie over de woning. Hier kunt u ook een bezichtigingsafspraak aanvragen waarbij u het digitale woningdossier met aanvullende documenten ontvangt.

KAN IK DIT BETALEN?
Als extra service maken wij graag GRATIS EN VRIJBLIJVEND een hypotheek berekening door een van onze onafhankelijk hypotheekadviseurs. Wij kennen geen lange wachttijden waardoor vaak nog dezelfde dag een afspraak ingepland kan worden. Uiteindelijk kunnen wij indien gewenst de gehele financieringsaanvraag verzorgen.

----------------------------------------------------------------------------------------------------------------------------------------------

Deze informatie is door ons met de nodige zorgvuldigheid samengesteld. Onzerzijds wordt echter geen enkele aansprakelijkheid aanvaard voor enige onvolledigheid, onjuistheid of anderszins, dan wel de gevolgen daarvan. Alle opgegeven maten en oppervlakten zijn indicatief.


Download Brochure

Kenmerken

Vraagprijs
€ 550.000 k.k.
Bijdrage VVE
€ 179
Status
Verkocht
Aanvaarding
In overleg

Bouw

Soort appartement
Benedenwoning, Appartement
Gelegen op
1e woonlaag
Soort bouw
Bestaande bouw
Bouwjaar
1887
Onderhoud binnen
Goed
Onderhoud buiten
Goed
Bijzonderheden
Beschermd stads- of dorpgezicht

Oppervlakten en inhoud

Woonoppervlakte
147m²
Inhoud
607m³

Indeling

Aantal kamers
5
Aantal slaapkamers
4
Aantal badkamers
1
Aantal woonlagen
1

Energie

Energielabel
C
Isolatie
Gedeeltelijk dubbel glas
Warm water
C.V.-ketel
Verwarming
C.V.-ketel
Ketel
Remeha Calenta (Combi-ketel, Eigendom)

Buitenruimte

Ligging
Aan rustige weg, In woonwijk
Tuin
Patio/Atrium
Patio/Atrium
Zuidwest, 9m², 2.89×3m
Schuur
Inpandig

Garage


Plattegronden

Locatie

[ { "address": "Da Costastraat 101", "zipCode": "2513 RR", "city": "Den Haag", "lat": 52.0787496, "lng": 4.2958892 } ]

BUURTINFORMATIE

Den Haag, Zeeheldenkwartier

Inwoners

6561
Woningen

11165
Inwoners

Koop / Huur


 62% Huur 
 29% Koop

Huishoudens

 Zeeheldenkwartier
t.o.v
 Landelijk
.



Eenpersoon
64% - 37.6%


Geen kinderen
18% - 29%


Met kinderen
19% - 33.4%

Leeftijdsopbouw in jaren

 Zeeheldenkwartier t.o.v
 Landelijk
.

Bekijk verloop van de zon

Uw browser ondersteunt geen WebGL

Afspraak of contact

Uw bericht is naar ons verzonden. Wij nemen zo snel mogelijk contact met u op.

Sorry, we kunnen helaas niet met zekerheid vaststellen of u een mens of een geautomatiseerde bot/spammer bent. Hierdoor kunnen we het formulier dat u heeft ingevuld niet verzenden. Probeer het opnieuw of neem direct contact op met de makelaar via e-mail.

Er is iets mis gegaan met het versturen van het formulier.
Controleer of u alle velden (goed) heeft ingevoerd en probeer het nog een keer.

recaptcha
reCAPTCHA
PrivacyTerms

Kantoor Zeeheldenkwartier - Centrum
centrum@elzenaar.nl
+31703641765

Elzenaar Makelaarskantoor