van Heurnstraat 226

2274 NS, Voorburg (Voorburg Noord)

Vraagprijs

€ 389.000 k.k.

Omschrijving

Verkocht in 6 dagen boven de vraagprijs

Voorburg Noord. In een rustige straat in het geliefde Voorburg ligt deze in 2022 inpandig gerenoveerde benedenwoning (75m²) met een riante ruim 9 meter diepe achtertuin op het zuid-oosten. Deze fraaie woning is voorzien van een royale woonkamer met een luxe open keuken voorzien van inbouwapparatuur, 2 slaapkamers en een moderne badkamer. Daarnaast beschikt de gehele woning over vloerverwarming, strak stuc- en schilderwerk en vernieuwd leidingwerk (gas/water/elektra). De Vereniging van Eigenaren is actief en de woning is gelegen op eigen grond.

Locatie:
Voorburg Noord is een prettige woonwijk met een fijne mix van gezinnen en jonge professionals. De woning ligt op loopafstand van winkels, scholen en sportvoorzieningen, wat zorgt voor optimaal wooncomfort. Daarnaast bevindt de woning zich op fietsafstand van zowel het centrum van Voorburg als het centrum van Den Haag. De bereikbaarheid is uitstekend dankzij station Laan van NOI in de directe omgeving, van waaruit je snel en eenvoudig reist naar Den Haag, Utrecht en Rotterdam. Ook de snelweg ligt op een steenworp afstand. Een ideale locatie waar rust, gemak en stedelijke verbindingen samenkomen.

Indeling:

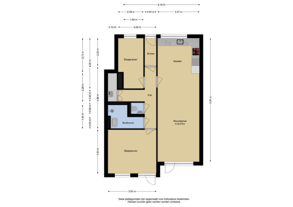
Woningentree; hal met vaste kast en cv-opstelling; riante woonkamer met modern open keuken welke o.a. is voorzien van een inductiekookplaat, afzuigkap, oven, magnetron, koelkast, vriezer, vaatwasser en toegang tot de diepe tuin; 1e slaapkamer aan de voorzijde; 2e slaapkamer aan de achterzijde; moderne badkamer met inloopdouche en een wastafelmeubel; modern separaat toilet met fonteintje; riante ruim 9 meter diepe achtertuin met schuur.

Bijzonderheden:

- Verwarming via Remeha cv-ketel uit 2022
- Geheel voorzien van kozijnen met dubbel glas
- Keuken vernieuwd in 2022
- Badkamer en toilet vernieuwd in 2022
- Energielabel C
- Actieve VvE; bijdrage € 50,- per maand
- Eigen grond
- Woonoppervlakte ca. 75m²
- In verband met het bouwjaar van de woning zal ongeacht de kwaliteit een ouderdomsclausule in de NVM koopakte worden opgenomen
- Oplevering per direct

MEER INFORMATIE?
Op onze website www.elzenaar.nl staat de meest complete informatie over de woning. Hier kunt u ook een bezichtigingsafspraak aanvragen waarbij u het digitale woningdossier met aanvullende documenten ontvangt.

KAN IK DIT BETALEN?
Als extra service maken wij graag GRATIS EN VRIJBLIJVEND een hypotheek berekening door een van onze onafhankelijk hypotheekadviseurs. Wij kennen geen lange wachttijden waardoor vaak nog dezelfde dag een afspraak ingepland kan worden. Uiteindelijk kunnen wij indien gewenst de gehele financieringsaanvraag verzorgen.

----------------------------------------------------------------------------------------------------------------------------------------------

Deze informatie is door ons met de nodige zorgvuldigheid samengesteld. Onzerzijds wordt echter geen enkele aansprakelijkheid aanvaard voor enige onvolledigheid, onjuistheid of anderszins, dan wel de gevolgen daarvan. Alle opgegeven maten en oppervlakten zijn indicatief.


Download Brochure

Kenmerken

Vraagprijs
€ 389.000 k.k.
Bijdrage VVE
€ 50
Status
Verkocht
Aanvaarding
In overleg

Bouw

Soort appartement
Benedenwoning, Appartement
Gelegen op
1e woonlaag
Soort bouw
Bestaande bouw
Bouwjaar
1925
Onderhoud binnen
Uitstekend
Onderhoud buiten
Uitstekend

Oppervlakten en inhoud

Woonoppervlakte
75m²
Inhoud
259m³

Indeling

Aantal kamers
4
Aantal slaapkamers
2
Aantal badkamers
1
Aantal woonlagen
1
Voorzieningen
Mechanische ventilatie, TV-Kabel, Natuurlijke ventilatie

Energie

Energielabel
C
Isolatie
Dubbel glas
Warm water
C.V.-ketel, Elektrische boiler eigendom
Verwarming
C.V.-ketel, Vloerverwarming geheel
Ketel
Remeha (2022, Combi-ketel, Eigendom)

Buitenruimte

Ligging
Aan rustige weg, In woonwijk
Tuin
Achtertuin
Achtertuin
Zuidwest, 73m², 7.7×9.45m
Schuur
Vrijstaand hout
Faciliteiten schuur
Voorzien van elektra

Garage


Plattegronden

Locatie

[ { "address": "van Heurnstraat 226", "zipCode": "2274 NS", "city": "Voorburg", "lat": 52.0776118, "lng": 4.3443514 } ]

BUURTINFORMATIE

Voorburg, Voorburg Noord

Inwoners

3485
Woningen

6930
Inwoners

Koop / Huur


 34% Huur 
 66% Koop

Huishoudens

 Voorburg Noord
t.o.v
 Landelijk
.



Eenpersoon
45% - 37.6%


Geen kinderen
24% - 29%


Met kinderen
30% - 33.4%

Leeftijdsopbouw in jaren

 Voorburg Noord t.o.v
 Landelijk
.

Bekijk verloop van de zon

Uw browser ondersteunt geen WebGL

Afspraak of contact

Uw bericht is naar ons verzonden. Wij nemen zo snel mogelijk contact met u op.

Sorry, we kunnen helaas niet met zekerheid vaststellen of u een mens of een geautomatiseerde bot/spammer bent. Hierdoor kunnen we het formulier dat u heeft ingevuld niet verzenden. Probeer het opnieuw of neem direct contact op met de makelaar via e-mail.

Er is iets mis gegaan met het versturen van het formulier.
Controleer of u alle velden (goed) heeft ingevoerd en probeer het nog een keer.

recaptcha
reCAPTCHA
PrivacyTerms

Kantoor Zuiderpark - HaagWest
info@elzenaar.nl
+31703604807

Elzenaar Makelaarskantoor