Werkhovenstraat 58

2546 VH, Den Haag (Leyenburg)

Vraagprijs

€ 225.000 k.k.

Omschrijving

Verkocht onder voorbehoud

Leyenburg. 3 Kamer 1e etage appartement (65m²) met fietsenberging, een zonnig balkon over de gehele breedte gelegen op het zuidwesten. De woning is o.a. voorzien van een woonkamer, een keuken in een hoekopstelling, 2 slaapkamers en een badkamer met bad en douche. Daarnaast is de woning voorzien van kozijnen met dubbel glas en gelegen op eigen grond.

Locatie:
Leyenburg is een gezellige en groene wijk in Den Haag, waar alles binnen handbereik is. Op loopafstand vind je winkelcentrum Leyenburg voor je dagelijkse boodschappen en meer. Ook het Almeloplein en winkelcentrum Leyweg liggen op korte afstand, ideaal voor een dagje winkelen. Voor ontspanning en sport kun je terecht in het uitgestrekte Zuiderpark, dé plek voor hardlopers, wandelaars en gezinnen. Scholen liggen op loopafstand, wat de wijk bijzonder kindvriendelijk maakt.

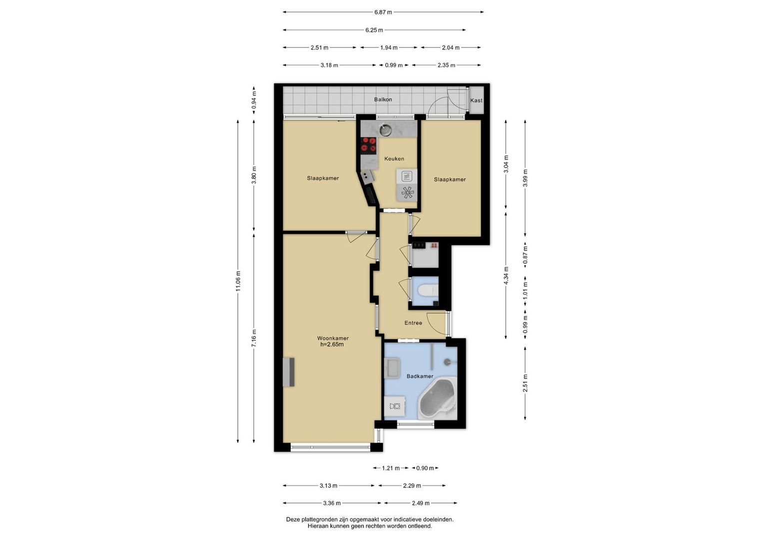
Indeling:

Entree via open portiek: entree woning op de 1e etage: hal met vaste kast met de elektrameter; woonkamer met grote raampartij; half open keuken met inbouwapparatuur, inductie kookplaat, afzuigkap, oven, vaatwasser en opstelplaats cv-ketel; 1e slaapkamer aan de achterzijde met schuifpui naar het balkon; 2e slaapkamer aan de achterzijde met toegang tot het balkon; badkamer met douche, bad, wastafelmeubel en wasmachineaansluiting; netjes betegeld separaat toilet; zonnig balkon met bergkast.

Voor uitgebreide maatvoeringen verwijzen wij u naar de plattegrond.

Bijzonderheden:

- Verwarming via cv-ketel Junkers
- Voorzien van kunststof kozijnen met dubbel glas
- Fietsenberging
- Bijdrage VvE € 100,- p.m.
- Energielabel D
- Woonoppervlakte ca. 65m² 
- Eigen grond
- In verband met het bouwjaar van de woning zal ongeacht de kwaliteit een ouderdoms- en materialenclausule in de NVM koopakte worden opgenomen
- Oplevering per direct

MEER INFORMATIE?
Op onze website www.elzenaar.nl staat de meest complete informatie over de woning. Hier kunt u ook een bezichtigingsafspraak aanvragen waarbij u het digitale woningdossier met aanvullende documenten ontvangt.

KAN IK DIT BETALEN?
Als extra service maken wij graag GRATIS EN VRIJBLIJVEND een hypotheek berekening door een van onze onafhankelijk hypotheekadviseurs. Wij kennen geen lange wachttijden waardoor vaak nog dezelfde dag een afspraak ingepland kan worden. Uiteindelijk kunnen wij indien gewenst de gehele financieringsaanvraag verzorgen.

----------------------------------------------------------------------------------------------------------------------------------------------

Deze informatie is door ons met de nodige zorgvuldigheid samengesteld. Onzerzijds wordt echter geen enkele aansprakelijkheid aanvaard voor enige onvolledigheid, onjuistheid of anderszins, dan wel de gevolgen daarvan. Alle opgegeven maten en oppervlakten zijn indicatief.


Download Brochure

Kenmerken

Vraagprijs
€ 225.000 k.k.
Bijdrage VVE
€ 100
Status
Verkocht onder voorbehoud
Aanvaarding
In overleg

Bouw

Soort appartement
Portiekwoning, Appartement
Gelegen op
2e woonlaag
Soort bouw
Bestaande bouw
Bouwjaar
1937
Onderhoud binnen
Redelijk
Onderhoud buiten
Redelijk

Oppervlakten en inhoud

Woonoppervlakte
65m²
Inhoud
227m³

Indeling

Aantal kamers
3
Aantal slaapkamers
2
Aantal badkamers
1
Aantal woonlagen
1
Voorzieningen
TV-Kabel, Natuurlijke ventilatie

Energie

Energielabel
D
Isolatie
Dubbel glas
Warm water
C.V.-ketel
Verwarming
C.V.-ketel
Ketel
Junkers (2001, Combi-ketel, Eigendom)

Buitenruimte

Balkon
Ja

Garage


Locatie

[ { "address": "Werkhovenstraat 58", "zipCode": "2546 VH", "city": "Den Haag", "lat": 52.0593337, "lng": 4.2744627 } ]

BUURTINFORMATIE

Den Haag, Leyenburg

Inwoners

7546
Woningen

14775
Inwoners

Koop / Huur


 39% Huur 
 61% Koop

Huishoudens

 Leyenburg
t.o.v
 Landelijk
.



Eenpersoon
46% - 37.6%


Geen kinderen
24% - 29%


Met kinderen
29% - 33.4%

Leeftijdsopbouw in jaren

 Leyenburg t.o.v
 Landelijk
.

Bekijk verloop van de zon

Uw browser ondersteunt geen WebGL

Afspraak of contact

Uw bericht is naar ons verzonden. Wij nemen zo snel mogelijk contact met u op.

Sorry, we kunnen helaas niet met zekerheid vaststellen of u een mens of een geautomatiseerde bot/spammer bent. Hierdoor kunnen we het formulier dat u heeft ingevuld niet verzenden. Probeer het opnieuw of neem direct contact op met de makelaar via e-mail.

Er is iets mis gegaan met het versturen van het formulier.
Controleer of u alle velden (goed) heeft ingevoerd en probeer het nog een keer.

recaptcha
reCAPTCHA
PrivacyTerms

Kantoor Zuiderpark - HaagWest
info@elzenaar.nl
+31703604807

Elzenaar Makelaarskantoor