Volendamlaan 80

2547 CJ, Den Haag (Leyenburg)

Vraagprijs

€ 299.000 k.k.

Omschrijving

Verkocht in 19 dagen boven de vraagprijs.

Leyenburg. Goed onderhouden royaal 4 kamer appartement (75m²) met een groot balkon op het zuidwesten, waar je heerlijk rustig kunt zitten. Het heeft een eigen berging in de onderbouw. Deze fraaie woning is o.a. voorzien van een sfeervolle woonkamer en suite met openslaande glas in lood deuren naar de eetkamer, moderne open keuken met inbouwapparatuur, 2 slaapkamers en modern sanitair. Daarnaast beschikt de woning over kozijnen met dubbel glas, eigen grond en een actieve Vereniging van Eigenaren met een meerjarenonderhoudsplan. Aan beide zijden heeft de woning vrij zicht en geen inkijk.

Ligging:
Gelegen in een prettige veilige woonomgeving. Het Zuiderpark met sport en recreatiemogelijkheden om de hoek. Op korte loopafstand van winkelcentrum Leyenburg met Jumbo, Albert Heyn, Etos en diverse andere dagwinkels. Zee, strand en duinen zijn op enkele minuten fietsen bereikbaar. Tram 6 en randstadrail 4 stoppen voor de deur. Diverse winkels bij het achterliggende Haga Ziekenhuis met een openbaar vervoerknooppunt (o.a. bus 21, 23, 26 en 37, tram 6 en randstadrail 4).

Indeling:
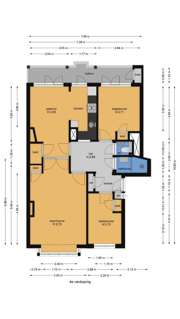
Afgesloten portiek met trappenhuis naar de berging en woningentree op de 3e etage; ruime hal met meterkast; woonkamer met een sfeervolle erker, een vaste kast en openslaande glas in lood deuren naar de eetkamer; eetkamer met vaste kast, openslaande deuren naar het balkon en een doorgebroken moderne open keuken voorzien van een gaskookplaat, afzuigkap, oven, koel-vriescombinatie, vaatwasser en deur naar het balkon; 1e slaapkamer aan de voorzijde met een vaste kast; 2e slaapkamer aan de achterzijde met een vaste kast en openslaande deuren naar het balkon; moderne badkamer met inloopdouche en wastafelmeubel; keurig toilet met fonteintje;

Indeling:
Afgesloten portiek met trappenhuis naar de berging en woningentree op de 3e etage; ruime hal met meterkast; woonkamer met een sfeervolle erker, een vaste kast en openslaande glas in lood deuren naar de eetkamer; eetkamer met vaste kast, openslaande deuren naar het balkon en een doorgebroken moderne open keuken voorzien van een gaskookplaat, afzuigkap, oven, koel-vriescombinatie, vaatwasser en deur naar het balkon; 1e slaapkamer aan de voorzijde met een vaste kast; 2e slaapkamer aan de achterzijde met een vaste kast en openslaande deuren naar het balkon; moderne badkamer met inloopdouche en wastafelmeubel; keurig toilet met fonteintje;

Voor uitgebreide maatvoeringen verwijzen wij u naar de plattegrond.

Bijzonderheden:

- Verwarming via Remeha Tzerra cv-ketel uit 2023
- Elektra: 7 groepen met 2 aardlekschakelaars
- Voorzijde in 2018 voorzien van kozijnen met HR++ dubbel glas
- Achterzijde voorzien van houten kozijnen met dubbel glas
- Eigen berging in de onderbouw
- Keuken vernieuwd ca. 2010
- Badkamer vernieuwd ca. 2010
- Actieve VvE: bijdrage € 105,91 per maand
- Woonoppervlakte ca. 75m²
- In verband met het bouwjaar van de woning zal ongeacht de kwaliteit een ouderdoms- en materialenclausule in de NVM koopakte worden opgenomen
- Oplevering in overleg


MEER INFORMATIE?
Op onze website www.elzenaar.nl staat de meest complete informatie over de woning. Hier kunt u ook een bezichtigingsafspraak aanvragen waarbij u het digitale woningdossier met aanvullende documenten ontvangt.

KAN IK DIT BETALEN?
Als extra service maken wij graag GRATIS EN VRIJBLIJVEND een hypotheek berekening door een van onze onafhankelijk hypotheekadviseurs. Wij kennen geen lange wachttijden waardoor vaak nog dezelfde dag een afspraak ingepland kan worden. Uiteindelijk kunnen wij indien gewenst de gehele financieringsaanvraag verzorgen.

----------------------------------------------------------------------------------------------------------------------------------------------

Deze informatie is door ons met de nodige zorgvuldigheid samengesteld. Onzerzijds wordt echter geen enkele aansprakelijkheid aanvaard voor enige onvolledigheid, onjuistheid of anderszins, dan wel de gevolgen daarvan. Alle opgegeven maten en oppervlakten zijn indicatief.


Download Brochure

Kenmerken

Vraagprijs
€ 299.000 k.k.
Bijdrage VVE
€ 106
Status
Verkocht
Aanvaarding
In overleg

Bouw

Soort appartement
Portiekwoning, Appartement
Gelegen op
4e woonlaag
Soort bouw
Bestaande bouw
Bouwjaar
1953
Onderhoud binnen
Goed
Onderhoud buiten
Goed

Oppervlakten en inhoud

Woonoppervlakte
75m²
Inhoud
255m³

Indeling

Aantal kamers
4
Aantal slaapkamers
2
Aantal badkamers
1
Aantal woonlagen
1
Voorzieningen
TV-Kabel

Energie

Energielabel
E
Isolatie
Dubbel glas
Warm water
C.V.-ketel
Verwarming
C.V.-ketel
Ketel
Remeha Tzerra (2023, Combi-ketel, Eigendom)

Buitenruimte

Ligging
In woonwijk
Balkon
Ja
Schuur
Box

Garage


Plattegronden

Locatie

[ { "address": "Volendamlaan 80", "zipCode": "2547 CJ", "city": "Den Haag", "lat": 52.06198, "lng": 4.2716973 } ]

BUURTINFORMATIE

Den Haag, Leyenburg

Inwoners

7546
Woningen

14775
Inwoners

Koop / Huur


 39% Huur 
 61% Koop

Huishoudens

 Leyenburg
t.o.v
 Landelijk
.



Eenpersoon
46% - 37.6%


Geen kinderen
24% - 29%


Met kinderen
29% - 33.4%

Leeftijdsopbouw in jaren

 Leyenburg t.o.v
 Landelijk
.

Bekijk verloop van de zon

Uw browser ondersteunt geen WebGL

Afspraak of contact

Uw bericht is naar ons verzonden. Wij nemen zo snel mogelijk contact met u op.

Sorry, we kunnen helaas niet met zekerheid vaststellen of u een mens of een geautomatiseerde bot/spammer bent. Hierdoor kunnen we het formulier dat u heeft ingevuld niet verzenden. Probeer het opnieuw of neem direct contact op met de makelaar via e-mail.

Er is iets mis gegaan met het versturen van het formulier.
Controleer of u alle velden (goed) heeft ingevoerd en probeer het nog een keer.

recaptcha
reCAPTCHA
PrivacyTerms

Kantoor Zuiderpark - HaagWest
info@elzenaar.nl
+31703604807

Elzenaar Makelaarskantoor