Uddelstraat 146

2573 VL, Den Haag (Rustenburg en Oostbroek)

Vraagprijs

€ 275.000 k.k.

Omschrijving

Verkocht onder voorbehoud

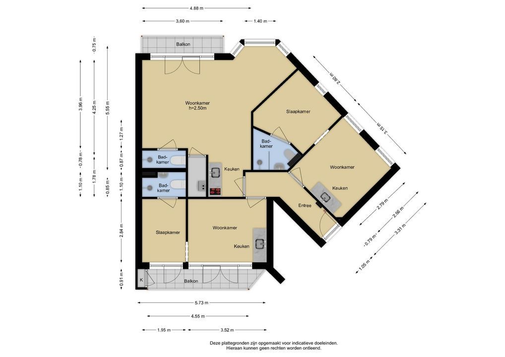
Rustenburg / Oostbroek. Royaal 5 kamer appartement (78m²) met voor- en achterbalkon. Deze woning is in het verleden verbouwd tot 3 studio's met elk een eigen woonkamer, keuken, badkamer en toilet. Eenvoudig is de woning te gebruiken als een appartement met 4 slaapkamers. De Vereniging van Eigenaren is actief en de erfpacht is eeuwigdurend afgekocht. Een ideaal appartement voor een groot gezin of om te bewonen met een vriend of vriendin.

Locatie:
Rustenburg/Oostbroek is een levendige wijk in Den Haag met een ideale ligging voor wie van gemak en groen houdt. Op loopafstand vind je de gezellige winkelstraten Apeldoornselaan en Dierenselaan, waar je terecht kunt voor je dagelijkse boodschappen en meer. De Haagse binnenstad ligt op slechts 10 minuten fietsen, perfect voor een middagje winkelen of een avondje uit. Voor ontspanning in het groen ben je binnen 5 minuten in het uitgestrekte Zuiderpark. Ook het openbaar vervoer is uitstekend geregeld, met haltes letterlijk om de hoek.

Indeling:
Woningentree via open portiek; hal met de meterkast; kast met de wasmachine aansluiting;

Entree naar de 1e studio aan de voorzijde: riante lichte woonkamer met toegang tot het balkon; eenvoudige open keuken met een kookplaat, koelkast en veel kastruimte; nette badkamer met douche en toilet; vaste kast met de cv-opstelling;

Entree naar de 2e studio aan de voorzijde: ruime woonkamer; eenvoudige open keuken met veel kastruimte; slaapkamer met toegang tot de nette badkamer met douche, wastafel en toilet;

Entree naar de 3e studio aan de achterzijde: ruime woonkamer met openslaande deuren naar het balkon; eenvoudige keuken met veel kastruimte; slaapkamer met toegang tot het balkon en de nette badkamer met douche, wastafel en toilet;

Voor uitgebreide maatvoeringen verwijzen wij u naar de plattegrond.


Bijzonderheden:

- Verwarming via Itho Daalderop cv-ketel
- Elektra: 12 groepen met 3 aardlekschakelaars
- Voorzijde voorzien van kunststof kozijnen met dubbel glas uit 2017
- Achterzijde voorzien van houten kozijnen met dubbel glas
- Vernieuwd leidingwerk (gas/water/elektra)
- Actieve VvE, bijdrage € 125,- per maand
- Energielabel D
- Woonoppervlakte ca. 78m²
- Eigen grond
- Niet-bewoningsclausule van toepassing
- In verband met het bouwjaar van de woning zal ongeacht de kwaliteit een ouderdoms- en materialenclausule in de NVM koopakte worden opgenomen
- Oplevering per direct

MEER INFORMATIE?
Op onze website www.elzenaar.nl staat de meest complete informatie over de woning. Hier kunt u ook een bezichtigingsafspraak aanvragen waarbij u het digitale woningdossier met aanvullende documenten ontvangt.

KAN IK DIT BETALEN?
Als extra service maken wij graag GRATIS EN VRIJBLIJVEND een hypotheek berekening door een van onze onafhankelijk hypotheekadviseurs. Wij kennen geen lange wachttijden waardoor vaak nog dezelfde dag een afspraak ingepland kan worden. Uiteindelijk kunnen wij indien gewenst de gehele financieringsaanvraag verzorgen.

----------------------------------------------------------------------------------------------------------------------------------------------

Deze informatie is door ons met de nodige zorgvuldigheid samengesteld. Onzerzijds wordt echter geen enkele aansprakelijkheid aanvaard voor enige onvolledigheid, onjuistheid of anderszins, dan wel de gevolgen daarvan. Alle opgegeven maten en oppervlakten zijn indicatief.


Download Brochure

Kenmerken

Vraagprijs
€ 275.000 k.k.
Bijdrage VVE
€ 125
Status
Verkocht onder voorbehoud
Aanvaarding
Per direct

Bouw

Soort appartement
Portiekwoning, Appartement
Gelegen op
2e woonlaag
Soort bouw
Bestaande bouw
Bouwjaar
1936
Onderhoud binnen
Goed
Onderhoud buiten
Goed

Oppervlakten en inhoud

Woonoppervlakte
78m²
Inhoud
269m³

Indeling

Aantal kamers
5
Aantal slaapkamers
4
Aantal badkamers
3
Aantal woonlagen
1

Energie

Energielabel
D
Isolatie
Dubbel glas
Warm water
C.V.-ketel
Verwarming
C.V.-ketel
Ketel
Itho Daalderop (Combi-ketel, Eigendom)

Buitenruimte

Ligging
Aan rustige weg, In woonwijk
Balkon
Ja

Garage


Plattegronden

Locatie

[ { "address": "Uddelstraat 146", "zipCode": "2573 VL", "city": "Den Haag", "lat": 52.061712, "lng": 4.2849385 } ]

BUURTINFORMATIE

Den Haag, Rustenburg en Oostbroek

Inwoners

8277
Woningen

18280
Inwoners

Koop / Huur


 39% Huur 
 60% Koop

Huishoudens

 Rustenburg en Oostbroek
t.o.v
 Landelijk
.



Eenpersoon
44% - 37.6%


Geen kinderen
22% - 29%


Met kinderen
35% - 33.4%

Leeftijdsopbouw in jaren

 Rustenburg en Oostbroek t.o.v
 Landelijk
.

Bekijk verloop van de zon

Uw browser ondersteunt geen WebGL

Afspraak of contact

Uw bericht is naar ons verzonden. Wij nemen zo snel mogelijk contact met u op.

Sorry, we kunnen helaas niet met zekerheid vaststellen of u een mens of een geautomatiseerde bot/spammer bent. Hierdoor kunnen we het formulier dat u heeft ingevuld niet verzenden. Probeer het opnieuw of neem direct contact op met de makelaar via e-mail.

Er is iets mis gegaan met het versturen van het formulier.
Controleer of u alle velden (goed) heeft ingevoerd en probeer het nog een keer.

recaptcha
reCAPTCHA
PrivacyTerms

Kantoor Zuiderpark - HaagWest
info@elzenaar.nl
+31703604807

Elzenaar Makelaarskantoor