Starterstraat 31

2531 GA, Den Haag (Moerwijk)

Vraagprijs

€ 350.000 k.k.

Omschrijving

Verkocht onder voorbehoud

Moerwijk. In een rustige straat gelegen 4 kamer eengezinswoning (86m²) met voortuin en een royale achtertuin op het zuid-westen met een stenen berging. Deze woning is o.a. voorzien van een ruime woonkamer, nette open keuken met apparatuur, 3 slaapkamers en een degelijke badkamer. Daarnaast beschikt de woning over een ruime vliering. Bovendien is de erfpacht eeuwigdurend afgekocht.

Ligging:
Moerwijk is een levendige wijk met een ideale ligging in Den Haag. Je loopt zó naar het groene Zuiderpark, perfect om te ontspannen of te sporten. Station Holland Spoor ligt vlakbij, net als tram- en bushaltes voor uitstekende ov-verbindingen. In de directe omgeving vind je diverse scholen, ideaal voor gezinnen. Alles wat je nodig hebt, ligt binnen handbereik. Moerwijk is de perfecte uitvalsbasis voor wie centraal én comfortabel wil wonen.

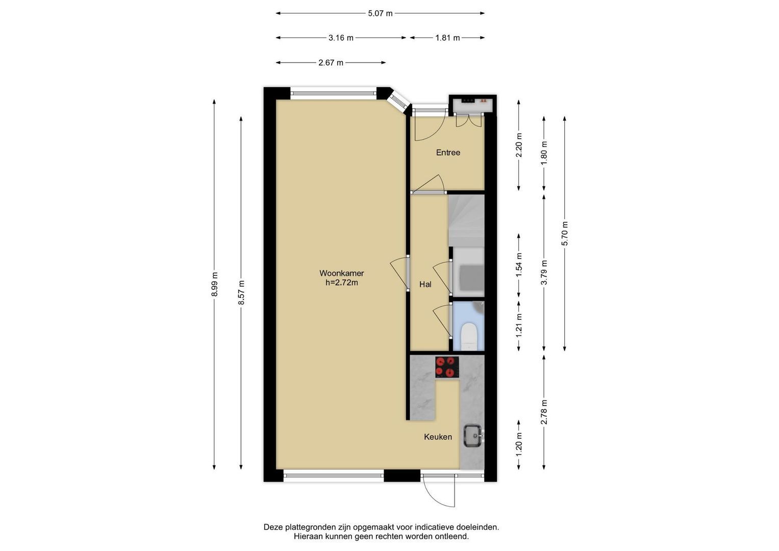
Indeling:

Voortuin, Entree woning : hal met meterkast, gang; vaste kast onder de trap met wasmachine aansluiting; toilet met fonteintje; riante woonkamer met aan de achterzijde open gelegen keuken met inbouwapparatuur kookplaat, afzuigkap, combi oven-magnetron, koelkast, vriezer, vaatwasser en toegang tot de flinke achtertuin met vrijstaande betonplaten schuur over de gehele breedte voorzien van elektra en water aansluiting en met achteruitgang. Trap naar 1e etage.

1e verdieping: overloop met vaste kast; 1e slaapkamer aan de voorzijde met 2 vaste kasten; 2e slaapkamer aan de voorzijde; 3e slaapkamer aan de achterzijde met vaste kast en toegang tot het balkon over de gehele breedte van de woning; vliezotrap naar zolder.

Zolder verdieping: zelf in te delen open zolderruimte met opstelplaats cv-ketel.

Voor uitgebreide maatvoeringen verwijzen wij u naar de plattegrond.

Bijzonderheden:

- Verwarming via cv-ketel Intergas Combi Compact Hr
- Bijna geheel voorzien van aluminium kozijnen met dubbel glas en
een kozijn in de woonkamer (achterzijde) hardhout met enkel glas
- Energielabel C
- Badkamer uit 2015
- Woonoppervlakte ca. 83m²
- Erfpachtcanon eeuwigdurend afgekocht
- In verband met het bouwjaar van de woning zal ongeacht de kwaliteit een ouderdoms- en materialenclausule in de NVM koopakte worden opgenomen
- Oplevering in overleg

MEER INFORMATIE?
Op onze website www.elzenaar.nl staat de meest complete informatie over de woning. Hier kunt u ook een bezichtigingsafspraak aanvragen waarbij u het digitale woningdossier met aanvullende documenten ontvangt.

KAN IK DIT BETALEN?
Als extra service maken wij graag GRATIS EN VRIJBLIJVEND een hypotheek berekening door een van onze onafhankelijk hypotheekadviseurs. Wij kennen geen lange wachttijden waardoor vaak nog dezelfde dag een afspraak ingepland kan worden. Uiteindelijk kunnen wij indien gewenst de gehele financieringsaanvraag verzorgen.

----------------------------------------------------------------------------------------------------------------------------------------------

Deze informatie is door ons met de nodige zorgvuldigheid samengesteld. Onzerzijds wordt echter geen enkele aansprakelijkheid aanvaard voor enige onvolledigheid, onjuistheid of anderszins, dan wel de gevolgen daarvan. Alle opgegeven maten en oppervlakten zijn indicatief.


Download Brochure

Kenmerken

Vraagprijs
€ 350.000 k.k.
Status
Verkocht onder voorbehoud
Aanvaarding
Per direct

Bouw

Soort woonhuis
Eengezinswoning, Tussenwoning
Soort bouw
Bestaande bouw
Bouwjaar
1941
Onderhoud binnen
Goed
Onderhoud buiten
Goed

Oppervlakten en inhoud

Woonoppervlakte
83m²
Perceeloppervlakte
126m²
Overig oppervlakte
7m²
Inhoud
350m³

Indeling

Aantal kamers
5
Aantal slaapkamers
3
Aantal badkamers
1
Aantal woonlagen
3

Energie

Energielabel
C
Isolatie
Dubbel glas
Warm water
C.V.-ketel
Verwarming
C.V.-ketel
Ketel
Intergas (2007, Combi-ketel, Eigendom)

Buitenruimte

Ligging
Aan rustige weg, In woonwijk
Balkon
Ja
Tuin
Achtertuin, Voortuin
Achtertuin
Zuidwest, 40m², 5.25×7.55m
Schuur
Vrijstaand steen

Garage


Plattegronden

Locatie

[ { "address": "Starterstraat 31", "zipCode": "2531 GA", "city": "Den Haag", "lat": 52.0527892, "lng": 4.3010924 } ]

BUURTINFORMATIE

Den Haag, Moerwijk

Inwoners

2174
Woningen

3945
Inwoners

Koop / Huur


 89% Huur 
 11% Koop

Huishoudens

 Moerwijk
t.o.v
 Landelijk
.



Eenpersoon
59% - 37.6%


Geen kinderen
17% - 29%


Met kinderen
24% - 33.4%

Leeftijdsopbouw in jaren

 Moerwijk t.o.v
 Landelijk
.

Bekijk verloop van de zon

Uw browser ondersteunt geen WebGL

Afspraak of contact

Uw bericht is naar ons verzonden. Wij nemen zo snel mogelijk contact met u op.

Sorry, we kunnen helaas niet met zekerheid vaststellen of u een mens of een geautomatiseerde bot/spammer bent. Hierdoor kunnen we het formulier dat u heeft ingevuld niet verzenden. Probeer het opnieuw of neem direct contact op met de makelaar via e-mail.

Er is iets mis gegaan met het versturen van het formulier.
Controleer of u alle velden (goed) heeft ingevoerd en probeer het nog een keer.

recaptcha
reCAPTCHA
PrivacyTerms

Kantoor Zuiderpark - HaagWest
info@elzenaar.nl
+31703604807

Elzenaar Makelaarskantoor