Soestdijksekade 795

2574 CG, Den Haag (Leyenburg)

Vraagprijs

€ 250.000 v.o.n.

Omschrijving

Verkocht in 116 dagen.

Leyenburg. Wenst u rust, ruimte en privacy? Kies dan voor wonen op het water!

De woonark "Utopia" is gelegen aan de ventweg van de Soestdijksekade met vrij wijds uitzicht over het water.
Deze nette woonark is in 2021 inpandig verbouwd en is o.a. voorzien van een ruime woonkamer met een moderne open keuken, 2 slaapkamers, werkkamer en een keurige verzorgde badkamer. Daarnaast beschikt de woonboot over een betonnen bak, eigen terras op het water en een berging op de kade. Bovendien zijn alle kozijnen voorzien van dubbel glas en alle wanden zijn rondom geïsoleerd!

Bij aankoop van deze woonark betaald u geen overdrachtsbelasting!

Ligging:
Centraal t.o.v. diverse winkelstraten en centra- (Monnikendamplein, Fahrenheitstraat, Dierenselaan en op fietsafstand van het centrum van Den Haag, openbaar vervoer om de hoek. Zuiderstrand is op ca. 10 minuten fietsafstand. Groen-, sport- en recreatievoorzieningen alsmede het Zuiderpark zijn enkele minuten fietsen bereikbaar. Aan het vaarwater met verbinding naar o.a. richting Westland, Centrum en richting Leiden.

Indeling:

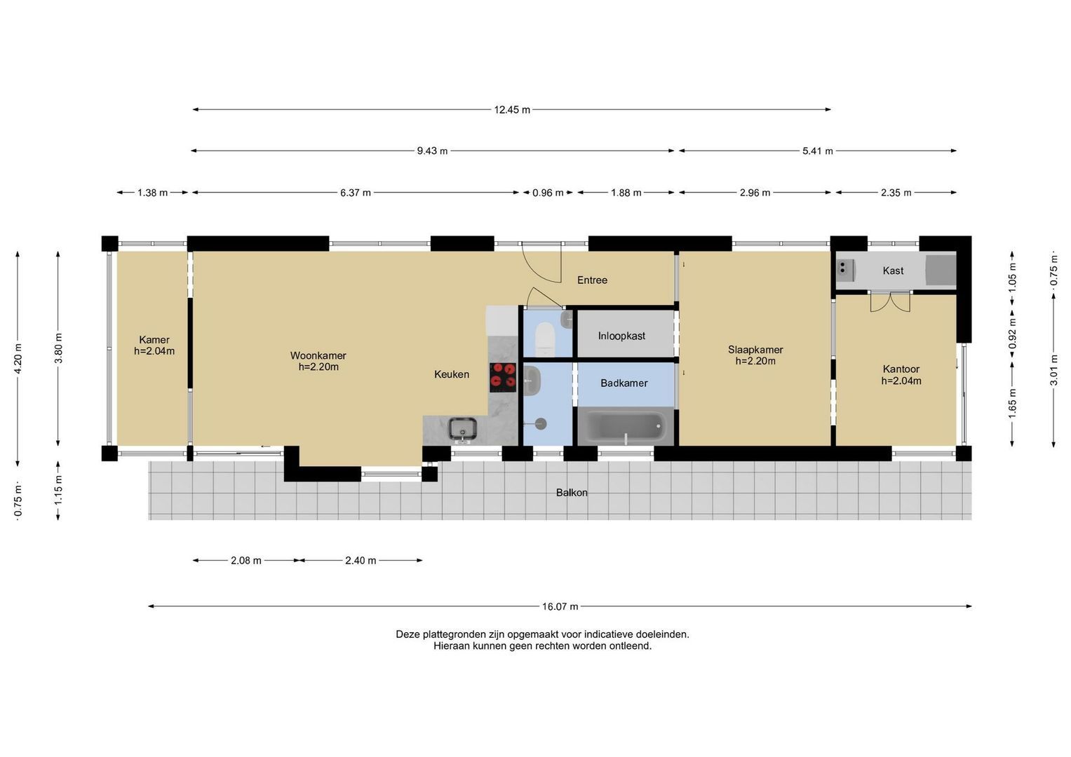
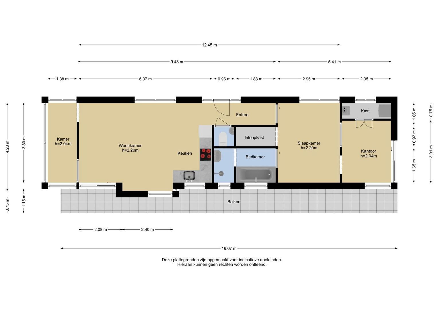
Woningentree vanaf de kade; woonkamer ca. 6.37x3.80/4.20 met een sfeervolle erker, grote raampartijen, schuifpui naar het terras, een moderne open keuken voorzien van een inductiekookplaat, afzuigkap, oven en een koelkast; vanuit de woonkamer bereikt u de studeerkamer ca. 3.80x1.38; net separaat toilet met fonteintje; 1e slaapkamer ca. 3.80x2.98 met een diepe inloopkast ca. 1.88x0.96, toegang tot de badkamer ca. 2.84/1.88x1.65 met ligbad, inloopdouche en wastafel; 2e slaapkamer ca. 3.01x2.35 met kast ca. 2.35x0.75 voorzien van de cv-opstelling en wasmachine aansluiting;

Bijzonderheden:

- Verwarming via cv-ketel Remeha Avanta geinstalleerd in 2024
- Geheel voorzien van kozijnen met dubbel glas
- Zeer licht vanwege grote ramen in schuifpuien aan de waterzijde
- Badkamer en toilet vernieuwd in 2021
- Keuken apparatuur en werkblad 2021
- Liggeld (precariobelasting) jaarbedrag € 531,20
- Aangesloten op alle nutsvoorzieningen
- Woonoppervlakte ca. 63m²
- Betonnen casco 1957
- Energielabel F
- In verband met het bouwjaar van de woning zal ongeacht de kwaliteit een ouderdoms- en materialenclausule in de NVM koopakte worden opgenomen
- Oplevering in overleg

MEER INFORMATIE?
Op onze website www.elzenaar.nl staat de meest complete informatie over de woning. Hier kunt u ook een bezichtigingsafspraak aanvragen waarbij u het digitale woningdossier met aanvullende documenten ontvangt.

KAN IK DIT BETALEN?
Als extra service maken wij graag GRATIS EN VRIJBLIJVEND een hypotheek berekening door een van onze onafhankelijk hypotheekadviseurs. Wij kennen geen lange wachttijden waardoor vaak nog dezelfde dag een afspraak ingepland kan worden. Uiteindelijk kunnen wij indien gewenst de gehele financieringsaanvraag verzorgen.
Rekening dient gehouden te worden met minimaal 10% eigen geld bij de aanschaf van een woonark.

----------------------------------------------------------------------------------------------------------------------------------------------

Deze informatie is door ons met de nodige zorgvuldigheid samengesteld. Onzerzijds wordt echter geen enkele aansprakelijkheid aanvaard voor enige onvolledigheid, onjuistheid of anderszins, dan wel de gevolgen daarvan. Alle opgegeven maten en oppervlakten zijn indicatief.


Download Brochure

Kenmerken

Vraagprijs
€ 250.000 v.o.n.
Status
Verkocht
Aanvaarding
In overleg

Bouw

Soort woonhuis
Woonboot, Vrijstaande woning, Waterwoning
Soort bouw
Bestaande bouw
Bouwjaar
1957
Onderhoud binnen
Goed
Onderhoud buiten
Goed

Oppervlakten en inhoud

Woonoppervlakte
63m²
Perceeloppervlakte
83m²
Inhoud
188m³

Indeling

Aantal kamers
4
Aantal slaapkamers
2
Aantal badkamers
1
Aantal woonlagen
1
Voorzieningen
Schuifpui

Energie

Energielabel
F
Isolatie
Dubbel glas
Warm water
C.V.-ketel
Verwarming
C.V.-ketel
Ketel
Remeha Cw4 Avanta (2023, Combi-ketel, Eigendom)

Buitenruimte

Ligging
Aan het water, Aan rustige weg, In woonwijk, Vrij uitzicht, Open ligging, Aan vaarroute

Garage


Plattegronden

Locatie

[ { "address": "Soestdijksekade 795", "zipCode": "2574 CG", "city": "Den Haag", "lat": 52.0614391, "lng": 4.2807526 } ]

BUURTINFORMATIE

Den Haag, Leyenburg

Inwoners

7546
Woningen

14775
Inwoners

Koop / Huur


 39% Huur 
 61% Koop

Huishoudens

 Leyenburg
t.o.v
 Landelijk
.



Eenpersoon
46% - 37.6%


Geen kinderen
24% - 29%


Met kinderen
29% - 33.4%

Leeftijdsopbouw in jaren

 Leyenburg t.o.v
 Landelijk
.

Bekijk verloop van de zon

Uw browser ondersteunt geen WebGL

Afspraak of contact

Uw bericht is naar ons verzonden. Wij nemen zo snel mogelijk contact met u op.

Sorry, we kunnen helaas niet met zekerheid vaststellen of u een mens of een geautomatiseerde bot/spammer bent. Hierdoor kunnen we het formulier dat u heeft ingevuld niet verzenden. Probeer het opnieuw of neem direct contact op met de makelaar via e-mail.

Er is iets mis gegaan met het versturen van het formulier.
Controleer of u alle velden (goed) heeft ingevoerd en probeer het nog een keer.

recaptcha
reCAPTCHA
PrivacyTerms

Kantoor Zuiderpark - HaagWest
info@elzenaar.nl
+31703604807

Elzenaar Makelaarskantoor