Soestdijksekade 594

2574 CC, Den Haag (Rustenburg en Oostbroek)

Vraagprijs

€ 269.000 k.k.

Omschrijving

Verkocht in 43 dagen boven de vraagprijs.

Rustenburg / Oostbroek. Met vrij uitzicht over de Soestdijksekade gelegen 4 kamer appartement (68m²) op de 1e etage met achterbalkon. Deze woning is o.a. voorzien van een ruime woonkamer, moderne keuken met inbouwapparatuur, 3 slaapkamers en een moderne badkamer. Daarnaast is de Vereniging van eigenaren is actief. De erfpacht is eeuwigdurend afgekocht!

Locatie:
In de wijk Rustenburg Oostbroek, gunstig gelegen ten opzichte van winkels (Apeldoornselaan/Dierenselaan) en diverse scholen. Het openbaar vervoer (tram 4) stopt op steenworp afstand. Het stadscentrum, groen-, sport- en recreatievoorzieningen alsmede zee, strand en duinen zijn op slechts enkele (fiets)minuten bereikbaar.

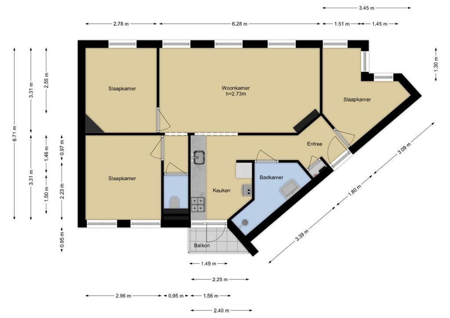
Indeling:

Woningentree via open portiek; hal met meterkast; woonkamer over de breedte van de woning met veel lichtinval; moderne open keuken voorzien van een gaskookplaat, afzuigkap, oven, vaatwasser, koel-vriescombinatie en toegang tot het balkon; 1e slaapkamer aan de voorzijde; 2e slaapkamer aan de voorzijde; 3e slaapkamer aan de achterzijde; moderne badkamer met inloopdouche en wastafelmeubel; modern separaat toilet;

Voor uitgebreide maatvoeringen verwijzen wij u naar onze plattegrond.

Bijzonderheden:

- Verwarming via Remeha Avanta cv-ketel uit 2018
- Voorzijde voorzien van kunststof kozijnen met dubbel glas
- Voorzijde voorzien van houten kozijnen met enkel glas
- Actieve VvE: bijdrage € 41,39 per maand
- Erfpacht is eeuwigdurend afgekocht
- Woonoppervlakte ca. 68m²
- Niet-bewoningsclausule van toepassing
- In verband met het bouwjaar van de woning zal ongeacht de kwaliteit een ouderdoms- en materialenclausule in de NVM koopakte worden opgenomen
- Oplevering per direct


MEER INFORMATIE?
Op onze website www.elzenaar.nl staat de meest complete informatie over de woning. Hier kunt u ook een bezichtigingsafspraak aanvragen waarbij u het digitale woningdossier met aanvullende documenten ontvangt.

KAN IK DIT BETALEN?
Als extra service maken wij graag GRATIS EN VRIJBLIJVEND een hypotheek berekening door een van onze onafhankelijk hypotheekadviseurs. Wij kennen geen lange wachttijden waardoor vaak nog dezelfde dag een afspraak ingepland kan worden. Uiteindelijk kunnen wij indien gewenst de gehele financieringsaanvraag verzorgen.

----------------------------------------------------------------------------------------------------------------------------------------------

Deze informatie is door ons met de nodige zorgvuldigheid samengesteld. Onzerzijds wordt echter geen enkele aansprakelijkheid aanvaard voor enige onvolledigheid, onjuistheid of anderszins, dan wel de gevolgen daarvan. Alle opgegeven maten en oppervlakten zijn indicatief.


Download Brochure

Kenmerken

Vraagprijs
€ 269.000 k.k.
Bijdrage VVE
€ 41
Status
Verkocht
Aanvaarding
Per direct

Bouw

Soort appartement
Portiekwoning, Appartement
Gelegen op
2e woonlaag
Soort bouw
Bestaande bouw
Bouwjaar
1929
Onderhoud binnen
Goed
Onderhoud buiten
Goed

Oppervlakten en inhoud

Woonoppervlakte
68m²
Inhoud
241m³

Indeling

Aantal kamers
4
Aantal slaapkamers
3
Aantal badkamers
1
Aantal woonlagen
1

Energie

Energielabel
E
Isolatie
Dubbel glas
Warm water
C.V.-ketel
Verwarming
C.V.-ketel
Ketel
Remeha Avanta (2018, Combi-ketel, Eigendom)

Buitenruimte

Ligging
Aan rustige weg, In woonwijk, Vrij uitzicht
Balkon
Ja

Garage


Plattegronden

Locatie

[ { "address": "Soestdijksekade 594", "zipCode": "2574 CC", "city": "Den Haag", "lat": 52.0619732, "lng": 4.2805058 } ]

BUURTINFORMATIE

Den Haag, Rustenburg en Oostbroek

Inwoners

8277
Woningen

18280
Inwoners

Koop / Huur


 39% Huur 
 60% Koop

Huishoudens

 Rustenburg en Oostbroek
t.o.v
 Landelijk
.



Eenpersoon
44% - 37.6%


Geen kinderen
22% - 29%


Met kinderen
35% - 33.4%

Leeftijdsopbouw in jaren

 Rustenburg en Oostbroek t.o.v
 Landelijk
.

Bekijk verloop van de zon

Uw browser ondersteunt geen WebGL

Afspraak of contact

Uw bericht is naar ons verzonden. Wij nemen zo snel mogelijk contact met u op.

Sorry, we kunnen helaas niet met zekerheid vaststellen of u een mens of een geautomatiseerde bot/spammer bent. Hierdoor kunnen we het formulier dat u heeft ingevuld niet verzenden. Probeer het opnieuw of neem direct contact op met de makelaar via e-mail.

Er is iets mis gegaan met het versturen van het formulier.
Controleer of u alle velden (goed) heeft ingevoerd en probeer het nog een keer.

recaptcha
reCAPTCHA
PrivacyTerms

Kantoor Zuiderpark - HaagWest
info@elzenaar.nl
+31703604807

Elzenaar Makelaarskantoor