Renbaanstraat 89

2586 EZ, Den Haag (Scheveningen)

Vraagprijs

€ 375.000 k.k.

Omschrijving

Verkocht in 22 dagen boven de vraagprijs.

Renbaankwartier-Scheveningen
Renoveer en geniet – wonen op loopafstand van boulevard en duinen
Dit royale dubbelbovenhuis (ca. 105 m²) op de 1e en 2e woonlaag ligt in een rustige straat, vlak bij de levendige Scheveningse boulevard, het strand en de duinen. Een unieke kans voor de handige doe-het-zelver.

Pluspunten:
+ Naar eigen inzicht te renoveren
+ Vier slaapkamers
+ Twee balkons met zon
+ Gelegen op eigen grond
+ Nabij strand, boulevard en duinen
+ Rustige straat, maar centraal gelegen

Locatie:
Wandel de straat uit en je staat bijna op het Scheveningse strand, de boulevard en iconische gebouwen zoals Het Kurhaus, Circustheater, Holland Casino en de bioscoop. Om de hoek ligt de gezellige Stevinstraat met elke donderdag een versmarkt en diverse winkels. Voor dagelijkse boodschappen kun je terecht bij de supermarkt of op de veelzijdige Keizerstraat met (vers)speciaalzaken.
Openbaar vervoer vind je onder andere op de Gevers Deynootweg (tram 1 en bus 22). Zin in groen? Het Westbroekpark ligt op loopafstand en biedt in de zomer leuke evenementen.

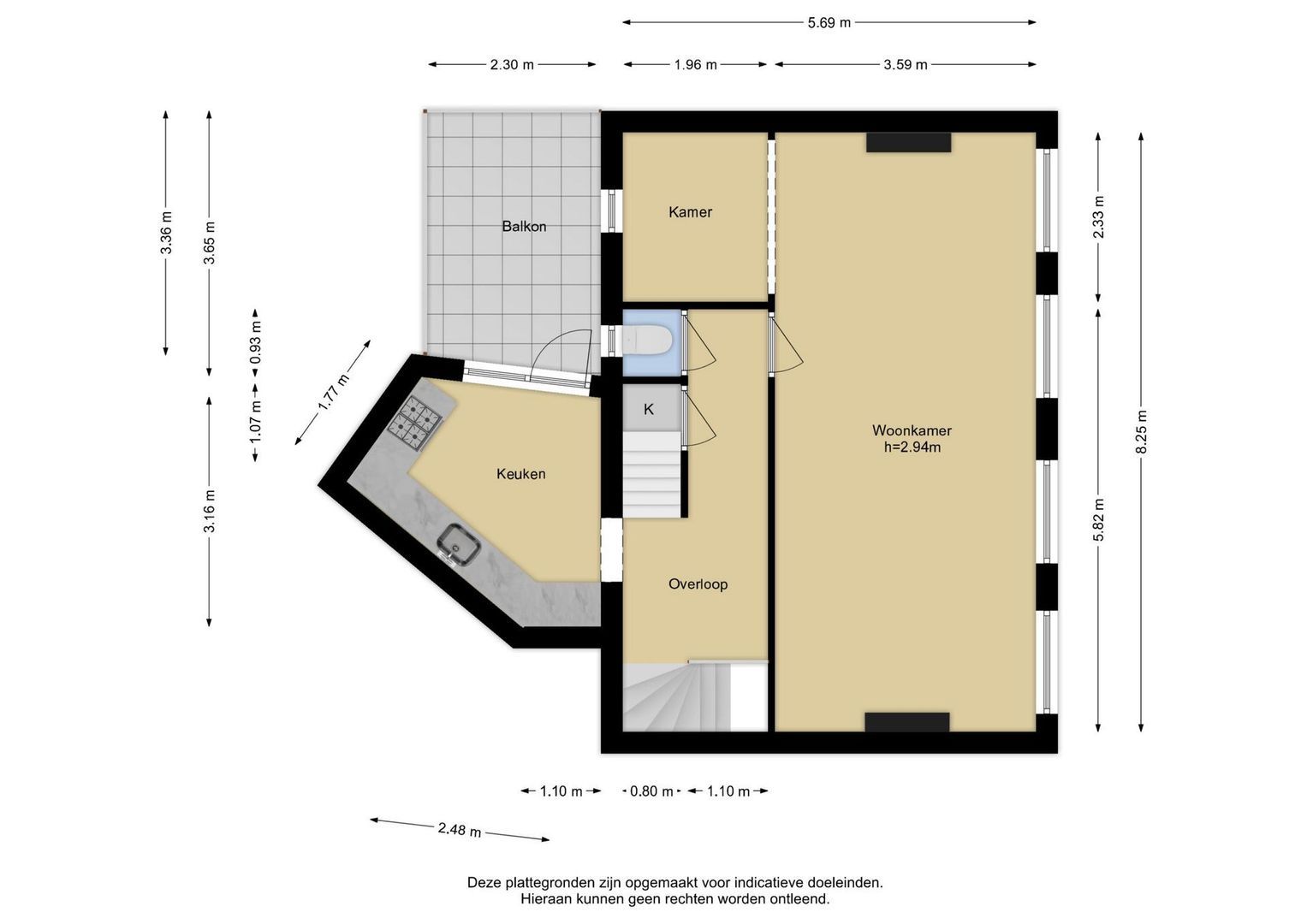
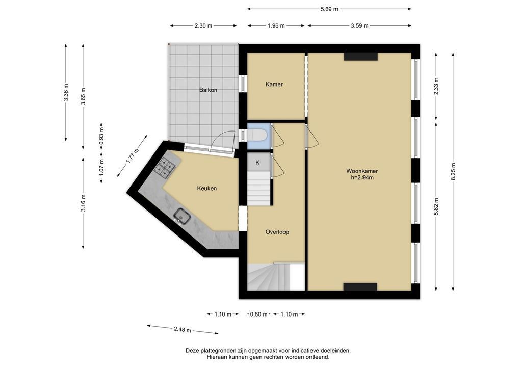
Indeling:
Entree: binnentrap naar de woonverdieping
1e verdieping: overloop met toilet; royale woonkamer over de breedte met veel lichtinval en uitzicht door de brede Renbaanstraat. Vanuit de woonkamer toegang tot een slaapkamer. Aan de achterzijde een ruime keuken met deur naar het royale achterbalkon/terras.
2e verdieping: overloop; drie ruime slaapkamers; badkamer en terras aan de achterzijde.

Voor de maatvoeringen verwijzen wij naar de plattegrond!


Bijzonderheden:
- Bouwjaar 1905
- Woonoppervlakte ca 105m²
- Eigen grond
- Beschermd stadsgezicht
- VVE in oprichting; woning wordt thans gesplitst van de benedenwoning
- Energielabel is aangevraagd
- Projectnotaris Clerx Leenders Netwerk Notarissen te Breda
- Niet-bewoningsclausule door eigenaar van toepassing.
- In verband met het bouwjaar van de woning zal ongeacht de kwaliteit een ouderdoms- en materialenclausule in de NVM koopakte worden opgenomen
- Oplevering per direct mogelijk


MEER INFORMATIE?
Op onze website www.elzenaar.nl staat de meest complete informatie over de woning. Hier kunt u ook een bezichtigingsafspraak aanvragen waarbij u het digitale woningdossier met aanvullende documenten ontvangt.

KAN IK DIT BETALEN?
Als extra service maken wij graag GRATIS EN VRIJBLIJVEND een hypotheek berekening door een van onze onafhankelijk hypotheekadviseurs. Wij kennen geen lange wachttijden waardoor vaak nog dezelfde dag een afspraak ingepland kan worden. Uiteindelijk kunnen wij indien gewenst de gehele financieringsaanvraag verzorgen.

----------------------------------------------------------------------------------------------------------------------------------------------

Deze informatie is door ons met de nodige zorgvuldigheid samengesteld. Onzerzijds wordt echter geen enkele aansprakelijkheid aanvaard voor enige onvolledigheid, onjuistheid of anderszins, dan wel de gevolgen daarvan. Alle opgegeven maten en oppervlakten zijn indicatief.


Download Brochure

Kenmerken

Vraagprijs
€ 375.000 k.k.
Status
Verkocht
Aanvaarding
Per direct

Bouw

Soort appartement
Bovenwoning, Dubbel bovenhuis
Gelegen op
0e woonlaag
Soort bouw
Bestaande bouw
Bouwjaar
1905
Onderhoud binnen
Matig
Onderhoud buiten
Goed
Bijzonderheden
Beschermd stads- of dorpgezicht, Kluswoning

Oppervlakten en inhoud

Woonoppervlakte
105m²
Perceeloppervlakte
74m²
Oppervlakte woonkamer
30m²
Inhoud
385m³

Indeling

Aantal kamers
5
Aantal slaapkamers
4
Aantal badkamers
1
Aantal woonlagen
2

Energie

Energielabel
G
Isolatie
Gedeeltelijk dubbel glas
Warm water
Geiser eigendom
Verwarming
Gashaard

Buitenruimte

Ligging
Aan rustige weg, In woonwijk
Balkon
Ja

Garage


Plattegronden

Locatie

[ { "address": "Renbaanstraat 89", "zipCode": "2586 EZ", "city": "Den Haag", "lat": 52.1084647, "lng": 4.2816321 } ]

BUURTINFORMATIE

Den Haag, Scheveningen

Inwoners

3237
Woningen

5380
Inwoners

Koop / Huur


 41% Huur 
 56% Koop

Huishoudens

 Scheveningen
t.o.v
 Landelijk
.



Eenpersoon
53% - 37.6%


Geen kinderen
25% - 29%


Met kinderen
23% - 33.4%

Leeftijdsopbouw in jaren

 Scheveningen t.o.v
 Landelijk
.

Bekijk verloop van de zon

Uw browser ondersteunt geen WebGL

Afspraak of contact

Uw bericht is naar ons verzonden. Wij nemen zo snel mogelijk contact met u op.

Sorry, we kunnen helaas niet met zekerheid vaststellen of u een mens of een geautomatiseerde bot/spammer bent. Hierdoor kunnen we het formulier dat u heeft ingevuld niet verzenden. Probeer het opnieuw of neem direct contact op met de makelaar via e-mail.

Er is iets mis gegaan met het versturen van het formulier.
Controleer of u alle velden (goed) heeft ingevoerd en probeer het nog een keer.

recaptcha
reCAPTCHA
PrivacyTerms

Kantoor Zeeheldenkwartier - Centrum
centrum@elzenaar.nl
+31703641765

Elzenaar Makelaarskantoor