Kranestraat 35 A

2512 AD, Den Haag (Centrum)

Vraagprijs

€ 275.000 k.k.

Omschrijving

Verkocht in 12 dagen voor de vraagprijs.

Binnenstad. Midden in het bruisende centrum op loopafstand van alle voorzieningen ligt dit keurige 2e etage appartement met een leuk loft gevoel, zeer lichte woonkamer met met open keuken, keurig sanitair en 2 slaapkamers. Deze woning maakt deel uit van een complex met 4 appartementen.

Enige pluspunten:

+ Alle voordelen van de binnenstad
+ Erfpacht eeuwigdurend afgekocht
+ Zo te betrekken, zelfs gemeubileerd
+ Energielabel B


Ligging: Gelegen in de Haagse binnenstad in een rustige straat tussen de Amsterdamse Veerkade en de Bierkade . Alle voorzieningen voor het centrumleven zijn op loopafstand en om de hoek. Natuurlijk vind je ook op loopafstand volop alle gezellige eetgelegenheden en kroegjes die de binnenstad ook biedt. En echt direct op de hoek zit het zalige en gezellige Yuzu Dining (Winnaar Gouden Pollepel 2020). Alle openbaar vervoerverbindingen op loopafstand en het Centraal station en Holland spoor binnen enkele minuten te bereiken. Een auto heb je hier echt niet nodig.


Indeling:

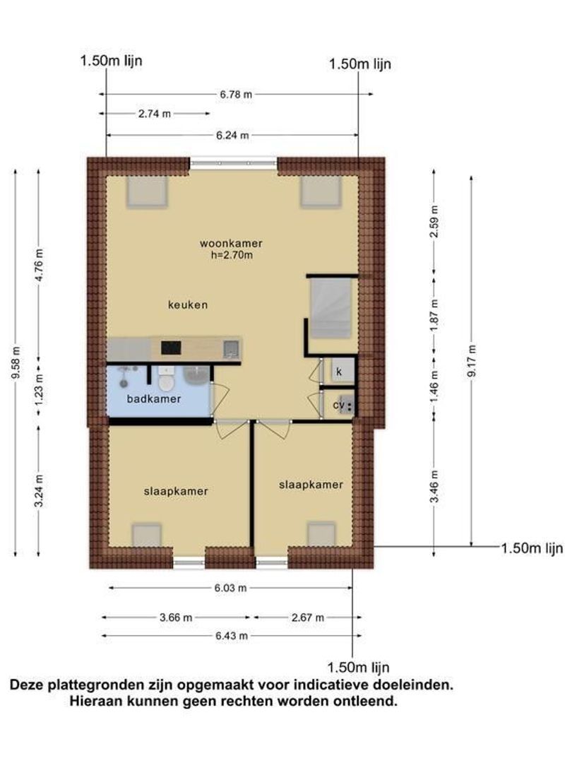
Centraal entree aan de straat; binnenhal met trap naar de 1e etage; entree woning met binnen halletje en trap naar de woonetage waar je direct de woonkamer binnenloopt woonkamer ca. 6.24x4.76 met een open keuken en ingebouwde inductie kookplaat; koelkast, afzuigkap, oven de woonkamer beschikt over een op het Zuid-Westen georiënteerde dakkapel en 2 dakramen waardoor de ruimte erg licht is. Overloop met ruimte voor de wasmachine en de drogen en een aparte ruimte voor de cv-ketel; 2 goede slaapkamers aan de voorzijde respectievelijk ca. 3.66x3.24 en 3.46x2.67; badkamer met douche, toilet en wastafelmeubel.


Bijzonderheden:

- Woonoppervlakte ca. 59 m²
- Alle kozijnen met dubbel glas HR++
- Cv-ketel Remeha avanta
- Bouwjaar 1809
- Erfpacht eeuwigdurend afgekocht
- Energielabel B
- VVE bijdrage € 141,66 per maand
- Voorschot gas, elektra € 130,--per maand
- Servicekosten ca. € 75,-- centrale schoonmaak, internet, glazenwasser ed.
- Projectnotaris: Lont & Lalmohamed Notarissen Den Haag
- Niet bewoners clausule van toepassing
- In verband met het bouwjaar van de woning zal ongeacht de kwaliteit van de woning in de NVM koopovereenkomst een ouderdomsclausule worden opgenomen
- Oplevering per direct

MEER INFORMATIE?
Op onze website www.elzenaar.nl staat de meest complete informatie over deze woning. Hier kunt u ook een bezichtigingsafspraak aanvragen waarbij u het digitale woningdossier met aanvullende documenten ontvangt.

KAN IK DIT BETALEN?
Als extra service maken wij graag GRATIS EN VRIJBLIJVEND een hypotheek berekening door een van onze onafhankelijk hypotheekadviseurs. Wij kennen geen lange wachttijden waardoor vaak nog dezelfde dag een afspraak ingepland kan worden. Uiteindelijk kunnen wij indien gewenst de gehele financieringsaanvraag verzorgen.

----------------------------------------------------------------------------------------------------------------------------------------------

Deze informatie is door ons met de nodige zorgvuldigheid samengesteld. Onzerzijds wordt echter geen enkele aansprakelijkheid aanvaard voor enige onvolledigheid, onjuistheid of anderszins, dan wel de gevolgen daarvan. Alle opgegeven maten en oppervlakten zijn indicatief.- i.v.m. het bouwjaar zijn de ouderdoms- en materialenclausule van toepassing


Download Brochure

Kenmerken

Vraagprijs
€ 275.000 k.k.
Bijdrage VVE
€ 142
Status
Verkocht
Aanvaarding
In overleg

Bouw

Soort appartement
Bovenwoning, Appartement
Gelegen op
3e woonlaag
Soort bouw
Bestaande bouw
Bouwjaar
1922
Onderhoud binnen
Goed
Onderhoud buiten
Goed
Bijzonderheden
Beschermd stads- of dorpgezicht

Oppervlakten en inhoud

Woonoppervlakte
59m²
Inhoud
194m³

Indeling

Aantal kamers
3
Aantal slaapkamers
2
Aantal woonlagen
1

Energie

Energielabel
B
Isolatie
Dubbel glas, HR-glas
Warm water
C.V.-ketel
Verwarming
C.V.-ketel
Ketel
Remeha Tzerra (Combi-ketel, Eigendom)

Buitenruimte

Ligging
Aan rustige weg, In centrum

Garage


Plattegronden

Locatie

[ { "address": "Kranestraat 35", "zipCode": "2512 AD", "city": "Den Haag", "lat": 52.0748852, "lng": 4.3169469 } ]

BUURTINFORMATIE

Den Haag, Centrum

Inwoners

11729
Woningen

18145
Inwoners

Koop / Huur


 75% Huur 
 22% Koop

Huishoudens

 Centrum
t.o.v
 Landelijk
.



Eenpersoon
64% - 37.6%


Geen kinderen
20% - 29%


Met kinderen
15% - 33.4%

Leeftijdsopbouw in jaren

 Centrum t.o.v
 Landelijk
.

Bekijk verloop van de zon

Uw browser ondersteunt geen WebGL

Afspraak of contact

Uw bericht is naar ons verzonden. Wij nemen zo snel mogelijk contact met u op.

Sorry, we kunnen helaas niet met zekerheid vaststellen of u een mens of een geautomatiseerde bot/spammer bent. Hierdoor kunnen we het formulier dat u heeft ingevuld niet verzenden. Probeer het opnieuw of neem direct contact op met de makelaar via e-mail.

Er is iets mis gegaan met het versturen van het formulier.
Controleer of u alle velden (goed) heeft ingevoerd en probeer het nog een keer.

recaptcha
reCAPTCHA
PrivacyTerms

Kantoor Zeeheldenkwartier - Centrum
centrum@elzenaar.nl
+31703641765

Elzenaar Makelaarskantoor