Kaapstraat 162

2572 HN, Den Haag (Transvaalkwartier)

Vraagprijs

€ 450.000 k.k.

Omschrijving

Verkocht in 36 dagen boven de vraagprijs.

Transvaal. Ruime tussen eengezinswoning, gelegen op een centrale locatie in de wijk Transvaal-Zuid. Deze 5 kamer eengezinswoning heeft een riante woonkamer. een verzorgde keuken op de 1e etage en 4 slaapkamers. De woning (ca. 122 m2) uit 1995, is efficiënt ingedeeld met slaapruimte op de begane grond dus daarom ook geschikt voor mindervaliden.

Ligging:
De woning is praktisch gelegen, in de nieuwbouw in Transvaal-Zuid wonen veel gezinnen. De woning is gelegen nabij het centrum, openbaar vervoer, Wijkpark Transvaal, Zuiderpark en doorgaande wegen (s100, s105, s106). Op loopafstand van alle noodzakelijke voorzieningen zoals supermarkten, de Haagse Markt, scholen, kinderopvang, speelplaatsen, diverse winkels en restaurants.

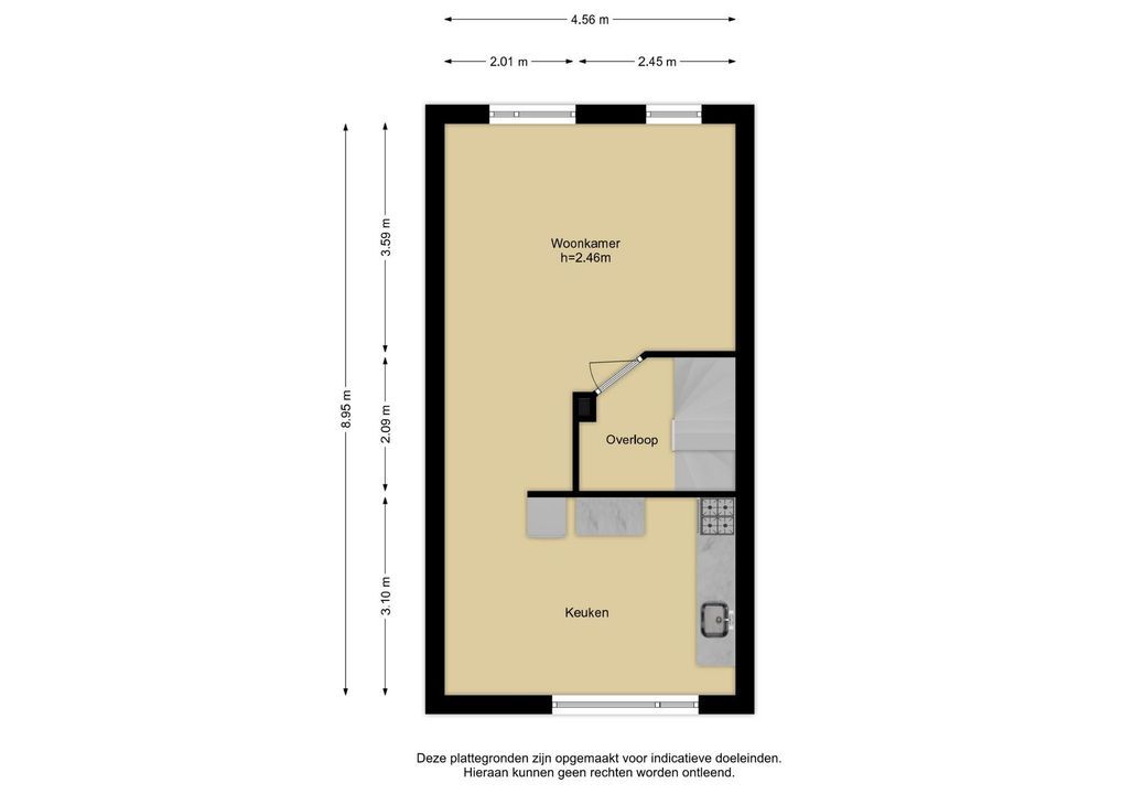
Begane grond
Entree met gang, meterkast en toilet. slaapkamer aan de voorzijde; grote tuinkamer en trap naar de 1e etage; toegang tot de achtertuin ca. 9.5x4.7 met vrijstaande berging en achterom.

Eerste verdieping
Op de eerste verdieping bevindt zich de woonkamer met een aan de achterzijde gesitueerde keuken.

Tweede verdieping
Op de tweede verdieping bevinden zich nog 3 slaapkamers en een ruime badkamer met douche, wastafel en 2e toilet. overloop met berg/stookruimte.

Voor de maatvoering verwijzen wij naar de plattegronden.

Bijzonderheden:

- Volledig geïsoleerde woning met energielabel A
- Ruime parkeermogelijkheden (betaald parkeren - parkeervergunningen) in de straat
- Geheel voorzien van houten kozijnen met dubbel glas
- Woonoppervlakte ca. 122m²
- Bouwjaar: 1995
- Erfpacht is eeuwigdurend afgekocht
- Oplevering in overleg (niet te snel)

MEER INFORMATIE?
Op onze website www.elzenaar.nl staat de meest complete informatie over de woning. Hier kunt u ook een bezichtigingsafspraak aanvragen waarbij u het digitale woningdossier met aanvullende documenten ontvangt.

KAN IK DIT BETALEN?
Als extra service maken wij graag GRATIS EN VRIJBLIJVEND een hypotheek berekening door een van onze onafhankelijk hypotheekadviseurs. Wij kennen geen lange wachttijden waardoor vaak nog dezelfde dag een afspraak ingepland kan worden. Uiteindelijk kunnen wij indien gewenst de gehele financieringsaanvraag verzorgen.

----------------------------------------------------------------------------------------------------------------------------------------------

Deze informatie is door ons met de nodige zorgvuldigheid samengesteld. Onzerzijds wordt echter geen enkele aansprakelijkheid aanvaard voor enige onvolledigheid, onjuistheid of anderszins, dan wel de gevolgen daarvan. Alle opgegeven maten en oppervlakten zijn indicatief.


Download Brochure

Kenmerken

Vraagprijs
€ 450.000 k.k.
Status
Verkocht
Aanvaarding
In overleg

Bouw

Soort woonhuis
Eengezinswoning, Tussenwoning
Soort bouw
Bestaande bouw
Bouwjaar
1995
Onderhoud binnen
Redelijk
Onderhoud buiten
Goed

Oppervlakten en inhoud

Woonoppervlakte
122m²
Perceeloppervlakte
96m²
Inhoud
436m³

Indeling

Aantal kamers
6
Aantal slaapkamers
5
Aantal badkamers
1
Aantal woonlagen
3

Energie

Energielabel
A
Isolatie
Dakisolatie, Muurisolatie, Vloerisolatie, Dubbel glas, Volledig geisoleerd
Warm water
C.V.-ketel
Verwarming
C.V.-ketel
Ketel
(Combi-ketel, Eigendom)

Buitenruimte

Ligging
In woonwijk
Tuin
Achtertuin
Achtertuin
Noordoost, 44m², 4.7×9.45m
Schuur
Vrijstaand hout
Faciliteiten schuur
Voorzien van elektra

Garage


Plattegronden

Locatie

[ { "address": "Kaapstraat 162", "zipCode": "2572 HN", "city": "Den Haag", "lat": 52.0632184, "lng": 4.2955121 } ]

BUURTINFORMATIE

Den Haag, Transvaalkwartier

Inwoners

2485
Woningen

7240
Inwoners

Koop / Huur


 55% Huur 
 45% Koop

Huishoudens

 Transvaalkwartier
t.o.v
 Landelijk
.



Eenpersoon
39% - 37.6%


Geen kinderen
16% - 29%


Met kinderen
45% - 33.4%

Leeftijdsopbouw in jaren

 Transvaalkwartier t.o.v
 Landelijk
.

Bekijk verloop van de zon

Uw browser ondersteunt geen WebGL

Afspraak of contact

Uw bericht is naar ons verzonden. Wij nemen zo snel mogelijk contact met u op.

Sorry, we kunnen helaas niet met zekerheid vaststellen of u een mens of een geautomatiseerde bot/spammer bent. Hierdoor kunnen we het formulier dat u heeft ingevuld niet verzenden. Probeer het opnieuw of neem direct contact op met de makelaar via e-mail.

Er is iets mis gegaan met het versturen van het formulier.
Controleer of u alle velden (goed) heeft ingevoerd en probeer het nog een keer.

recaptcha
reCAPTCHA
PrivacyTerms

Kantoor Zuiderpark - HaagWest
info@elzenaar.nl
+31703604807

Elzenaar Makelaarskantoor