Hulshorststraat 275

2573 EH, Den Haag (Rustenburg en Oostbroek)

Vraagprijs

€ 209.500 k.k.

Omschrijving

Verkocht in 45 dagen boven de vraagprijs

Rustenburg/Oostbroek. Keurig onderhouden 3 kamer appartement (55 m²) met een royale woonkamer, nette keuken met inbouwapparatuur, keurige badkamer, 2 slaapkamer en een balkon op het zuid-westen. Deze woning is geheel voorzien van kozijnen met dubbel glas, gelegen op eigen grond en een actieve Vereniging van Eigenaren met een meerjarenonderhoudsplan.

Pluspunten van de woning:
+ Ruime woonkamer
+ Kozijnen met dubbel glas
+ Balkon op het zuid-westen
+ Actieve Vereniging van Eigenaren met MJOP

Gunstige ligging t.o.v. winkels (winkelstraat Apeldoornselaan/Dierenselaan maar ook winkelcentrum Leyenburg), op fietsafstand van Stadscentrum en Scheveningen, openbaar vervoer en diverse scholen. Groen-, sport- en recreatievoorzieningen (Zuiderpark) alsmede zee, strand en duinen op enkele minuten fietsen bereikbaar.

Indeling:

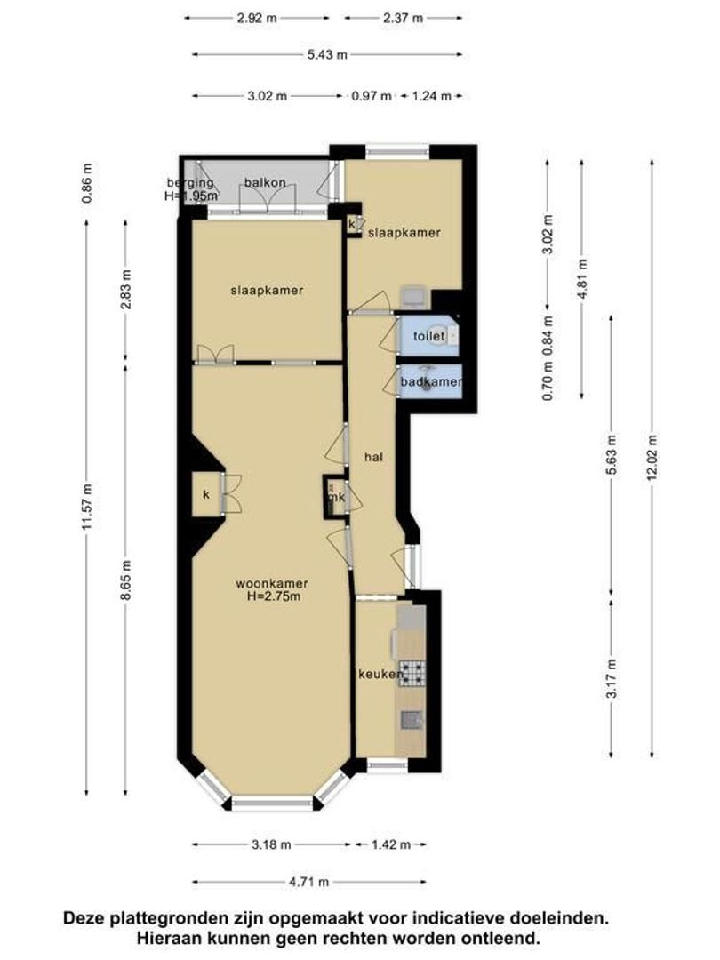
Woningentree op de 1e etage via open portiek; gang met meterkast en toiletruimte; woonkamer ca. 8.65x3.18 met erker en vaste kast; nette keuken ca. 3.17x1.42; voorzien van een gaskookplaat, afzuigkap, koel-vriescombinatie en een wasmachine; 1e slaapkamer aan de achterzijde ca. 2.83x3.02 met openslaande deuren naar het balkon; 2e slaapkamer aan de achterzijde ca. 3.02x2.37 met wastafel en toegang tot het balkon; nette badkamer ca. 1.24x0.70 met douche;

Bijzonderheden:

- Verwarming via Intergas HRE Cv-ketel uit 2022
- Elektra: 6 groepen met 2 aardlekschakelaars
- Voorzijde voorzien van kunststof kozijnen met dubbel glas
- Achterzijde voorzien van houten kozijnen met dubbel glas
- Energielabel C
- Actieve VvE: bijdrage € 75,- per maand
- Meerjarenonderhoudsplan is beschikbaar
- Woonoppervlakte ca. 55 m²
- In verband met het bouwjaar van de woning zal ongeacht de kwaliteit een ouderdoms- en materialenclausule in de NVM koopakte worden opgenomen
- Oplevering per direct


MEER INFORMATIE?
Op onze website www.elzenaar.nl staat de meest complete informatie over de woning. Hier kunt u ook een bezichtigingsafspraak aanvragen waarbij u het digitale woningdossier met aanvullende documenten ontvangt.

KAN IK DIT BETALEN?
Als extra service maken wij graag GRATIS EN VRIJBLIJVEND een hypotheek berekening door een van onze onafhankelijk hypotheekadviseurs. Wij kennen geen lange wachttijden waardoor vaak nog dezelfde dag een afspraak ingepland kan worden. Uiteindelijk kunnen wij indien gewenst de gehele financieringsaanvraag verzorgen.

----------------------------------------------------------------------------------------------------------------------------------------------

Deze informatie is door ons met de nodige zorgvuldigheid samengesteld. Onzerzijds wordt echter geen enkele aansprakelijkheid aanvaard voor enige onvolledigheid, onjuistheid of anderszins, dan wel de gevolgen daarvan. Alle opgegeven maten en oppervlakten zijn indicatief.


Download Brochure

Kenmerken

Vraagprijs
€ 209.500 k.k.
Bijdrage VVE
€ 75
Status
Verkocht
Aanvaarding
Per direct

Bouw

Soort appartement
Portiekwoning, Appartement
Gelegen op
2e woonlaag
Soort bouw
Bestaande bouw
Bouwjaar
1936
Onderhoud binnen
Goed
Onderhoud buiten
Goed

Oppervlakten en inhoud

Woonoppervlakte
55m²
Oppervlakte woonkamer
28m²
Inhoud
197m³

Indeling

Aantal kamers
3
Aantal slaapkamers
2
Aantal badkamers
1
Aantal woonlagen
1

Energie

Energielabel
C
Isolatie
Dubbel glas
Warm water
C.V.-ketel
Verwarming
C.V.-ketel
Ketel
Intergas HRE (2022, Combi-ketel, Eigendom)

Buitenruimte

Ligging
Aan rustige weg, In woonwijk
Balkon
Ja

Garage


Plattegronden

Virtuele tour

Locatie

[ { "address": "Hulshorststraat 275", "zipCode": "2573 EH", "city": "Den Haag", "lat": 52.0625634, "lng": 4.2891324 } ]

BUURTINFORMATIE

Den Haag, Rustenburg en Oostbroek

Inwoners

8277
Woningen

18280
Inwoners

Koop / Huur


 39% Huur 
 60% Koop

Huishoudens

 Rustenburg en Oostbroek
t.o.v
 Landelijk
.



Eenpersoon
44% - 37.6%


Geen kinderen
22% - 29%


Met kinderen
35% - 33.4%

Leeftijdsopbouw in jaren

 Rustenburg en Oostbroek t.o.v
 Landelijk
.

Bekijk verloop van de zon

Uw browser ondersteunt geen WebGL

Afspraak of contact

Uw bericht is naar ons verzonden. Wij nemen zo snel mogelijk contact met u op.

Sorry, we kunnen helaas niet met zekerheid vaststellen of u een mens of een geautomatiseerde bot/spammer bent. Hierdoor kunnen we het formulier dat u heeft ingevuld niet verzenden. Probeer het opnieuw of neem direct contact op met de makelaar via e-mail.

Er is iets mis gegaan met het versturen van het formulier.
Controleer of u alle velden (goed) heeft ingevoerd en probeer het nog een keer.

recaptcha
reCAPTCHA
PrivacyTerms

Kantoor Zuiderpark - HaagWest
info@elzenaar.nl
+31703604807

Elzenaar Makelaarskantoor