Fahrenheitstraat 425

2561 DZ, Den Haag (Valkenboskwartier)

Vraagprijs

€ 349.000 k.k.

Omschrijving

Valkenboskwartier. Een ruim en licht 3 kamer appartement (81m²) met balkon in een bruisende wijk. Deze eenvoudige woning is o.a. voorzien van een ruime woonkamer, eenvoudige keuken, eenvoudige badkamer en 2 slaapkamers. De Vereniging van Eigenaren is actief en gelegen op eigen grond.

Locatie:
Het Valkenboskwartier is een karaktervolle stadswijk in Den Haag, onderdeel van de grotere wijk Regentesse?en Valkenboskwartier. Deze populaire Haagse buurt staat bekend om haar statige herenhuizen, sfeervolle straten en gezellige buurtwinkels. Hier woon je rustig, maar toch midden in de stad, met alles binnen handbereik: De woning ligt in een buurt die veel te bieden heeft: van koffietentjes, speciaalzaken en buurtbakkers tot supermarkten, scholen en openbaar vervoer. De gezellige Weimarstraat en Fahrenheitstraat bevinden zich op loopafstand, net als meerdere parken en pleinen.

indeling:
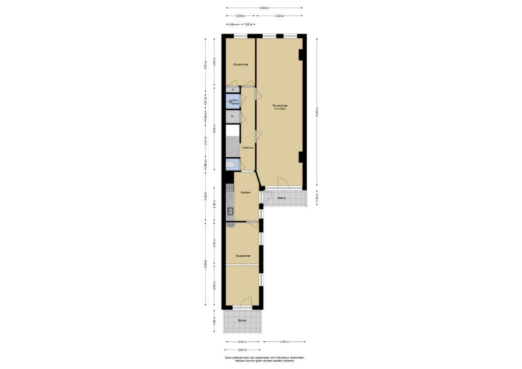
Via het open portiek bereik je de woningentree op de eerste etage. In de hal bevinden zich de meterkast en de binnentrap naar de tweede etage. Vanaf de overloop heb je toegang tot alle vertrekken. De lichte en ruime woon-/eetkamer met grote raampartijen zorgen hier voor een prettige lichtinval en een open uitstraling. Vanuit de woonkamer heb je toegang tot het 1e balkon aan de achterzijde. De keuken is eenvoudig van opzet, maar biedt volop mogelijkheden om naar eigen wens te moderniseren. Vanuit de keuken is de tweede slaapkamer bereikbaar, gelegen aan de achterzijde. Deze kamer biedt directe toegang tot het 2e balkon. Op de overloop bevinden zich de eenvoudige badkamer met douche en separaat een toilet.

Voor uitgebreide maatvoeringen verwijzen wij u naar de plattegrond.

Bijzonderheden:
- Verwarming via Bosch cv-ketel 2011
- Elektra: 4 groepen met aardlekschakelaar
- Geheel voorzien van kozijnen met dubbel glas
- Actieve VvE: bijdrage € 50,- per maand
- Energielabel G
- Woonoppervlakte ca. 81m²
- Eigen grond
- Niet-bewoningsclausule van toepassing
- In verband met het bouwjaar van de woning zal ongeacht de kwaliteit een ouderdoms- en materialenclausule in de NVM koopakte worden opgenomen
- Oplevering per direct

MEER INFORMATIE?
Op onze website www.elzenaar.nl staat de meest complete informatie over de woning. Hier kunt u ook een bezichtigingsafspraak aanvragen waarbij u het digitale woningdossier met aanvullende documenten ontvangt.

KAN IK DIT BETALEN?
Als extra service maken wij graag GRATIS EN VRIJBLIJVEND een hypotheek berekening door een van onze onafhankelijk hypotheekadviseurs. Wij kennen geen lange wachttijden waardoor vaak nog dezelfde dag een afspraak ingepland kan worden. Uiteindelijk kunnen wij indien gewenst de gehele financieringsaanvraag verzorgen.

----------------------------------------------------------------------------------------------------------------------------------------------

Deze informatie is door ons met de nodige zorgvuldigheid samengesteld. Onzerzijds wordt echter geen enkele aansprakelijkheid aanvaard voor enige onvolledigheid, onjuistheid of anderszins, dan wel de gevolgen daarvan. Alle opgegeven maten en oppervlakten zijn indicatief.


Download Brochure

Kenmerken

Vraagprijs
€ 349.000 k.k.
Bijdrage VVE
€ 50
Status
Beschikbaar
Aanvaarding
Per direct

Bouw

Soort appartement
Bovenwoning, Appartement
Gelegen op
3e woonlaag
Soort bouw
Bestaande bouw
Bouwjaar
1912
Onderhoud binnen
Redelijk
Onderhoud buiten
Goed
Bijzonderheden
Beschermd stads- of dorpgezicht

Oppervlakten en inhoud

Woonoppervlakte
81m²
Oppervlakte woonkamer
35m²
Inhoud
338m³

Indeling

Aantal kamers
3
Aantal slaapkamers
2
Aantal badkamers
1
Aantal woonlagen
1
Voorzieningen
TV-Kabel, Natuurlijke ventilatie

Energie

Energielabel
G
Isolatie
Dubbel glas
Warm water
C.V.-ketel
Verwarming
C.V.-ketel
Ketel
Bosch (2011, Combi-ketel, Eigendom)

Buitenruimte

Ligging
Aan rustige weg, In woonwijk
Balkon
Ja

Garage


Plattegronden

Locatie

[ { "address": "Fahrenheitstraat 425", "zipCode": "2561 DZ", "city": "Den Haag", "lat": 52.0755091, "lng": 4.2731198 } ]

BUURTINFORMATIE

Den Haag, Valkenboskwartier

Inwoners

5822
Woningen

11540
Inwoners

Koop / Huur


 50% Huur 
 47% Koop

Huishoudens

 Valkenboskwartier
t.o.v
 Landelijk
.



Eenpersoon
53% - 37.6%


Geen kinderen
21% - 29%


Met kinderen
26% - 33.4%

Leeftijdsopbouw in jaren

 Valkenboskwartier t.o.v
 Landelijk
.

Bekijk verloop van de zon

Uw browser ondersteunt geen WebGL

Afspraak of contact

Uw bericht is naar ons verzonden. Wij nemen zo snel mogelijk contact met u op.

Sorry, we kunnen helaas niet met zekerheid vaststellen of u een mens of een geautomatiseerde bot/spammer bent. Hierdoor kunnen we het formulier dat u heeft ingevuld niet verzenden. Probeer het opnieuw of neem direct contact op met de makelaar via e-mail.

Er is iets mis gegaan met het versturen van het formulier.
Controleer of u alle velden (goed) heeft ingevoerd en probeer het nog een keer.

recaptcha
reCAPTCHA
PrivacyTerms

Kantoor Zuiderpark - HaagWest
info@elzenaar.nl
+31703604807

Elzenaar Makelaarskantoor