Fahrenheitstraat 122

2561 EE, Den Haag (Valkenboskwartier)

Vraagprijs

€ 350.000 k.k.

Omschrijving

Verkocht onder voorbehoud

Valkenboskwartier. Royaal 4 kamer dubbel bovenhuis (89m²) met een groot dakterras (15m²). Deze eenvoudige woning is voorzien van een riante woonkamer, degelijke keuken met apparatuur, 4 slaapkamers en een eenvoudige badkamer. De Vereniging van Eigenaren is actief. Daarnaast beschikt de woning over kozijnen met dubbel glas en is gelegen op eigen grond.

Locatie:
Wonen in het Valkenboskwartier is wonen in een levendige wijk vol charme. Op loopafstand vind je de gezellige Weimarstraat met boetieks, horeca en dagelijkse voorzieningen. Het openbaar vervoer ligt op slechts 5 minuten, met een snelle verbinding naar het centrum. Voor ontspanning ben je zo op de fiets bij de duinen en het strand. Ook aan gezinnen is gedacht: scholen liggen in de directe omgeving. Alles binnen handbereik, midden in Den Haag!

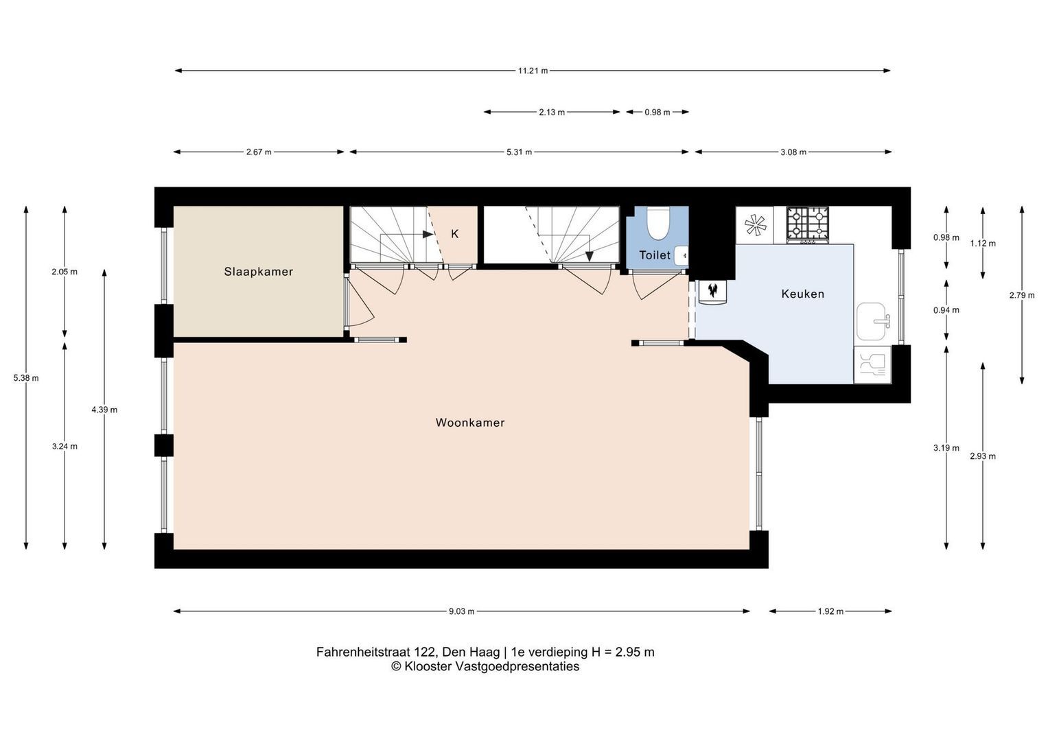
Indeling:
Woningentree op de begane grond; hal met meterkast; overloop; toilet met fonteintje; ruime lichte woonkamer; keuken in hoekopstelling welke o.a. is voorzien van een gaskookplaat, afzuigkap, oven, koel-vriescombinatie en vaatwasser; 1e slaapkamer aan de voorzijde;

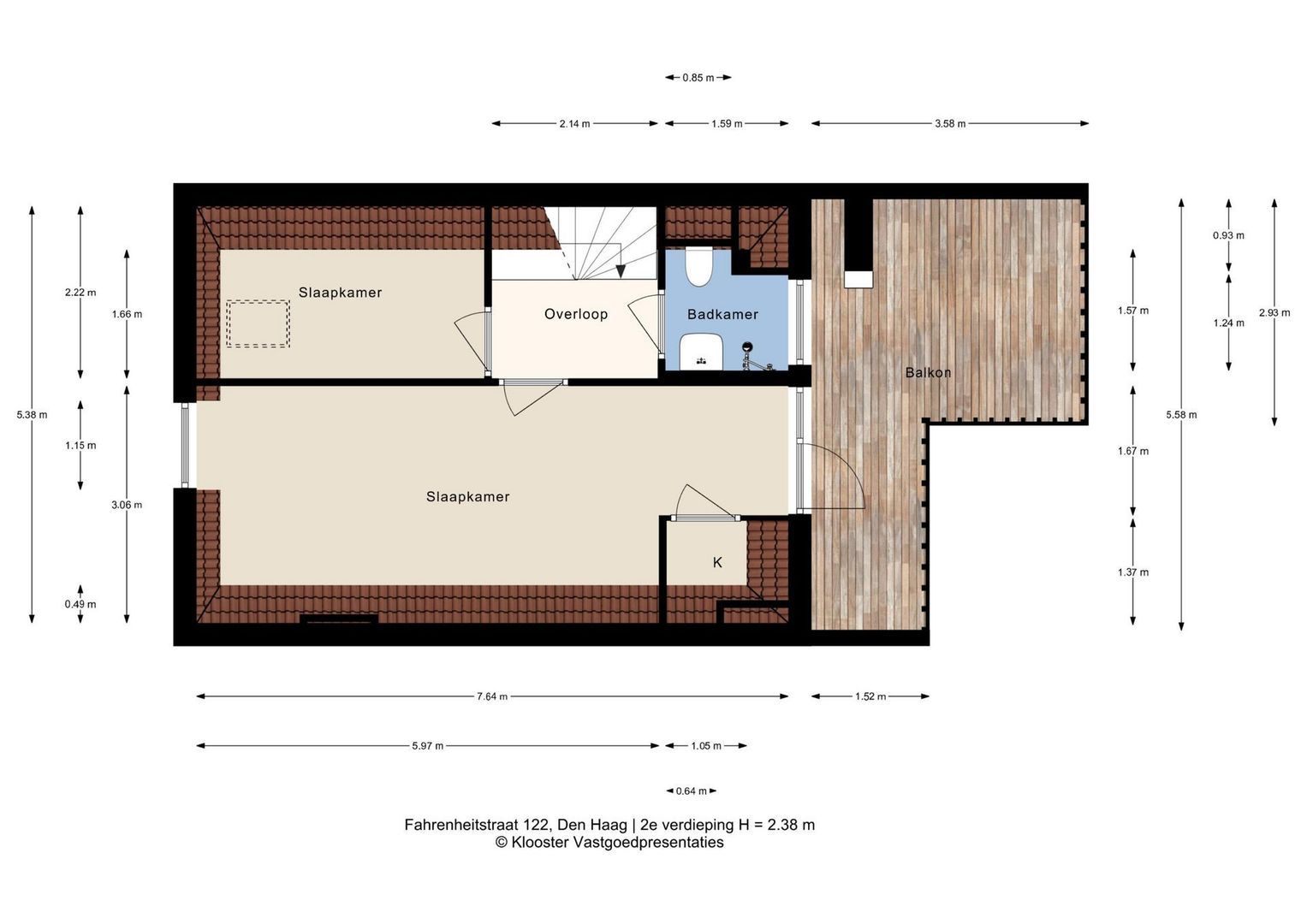
Trap vanaf de overloop naar de overloop op de 2e etage; 2e slaapkamer aan de voorzijde; riante 3e slaapkamer met toegang tot het royale dakterras; eenvoudig is een 4e slaapkamer te realiseren d.m.v. een tussenmuur in de 3e slaapkamer; eenvoudige badkamer met douche, wastafel en toilet;

Voor uitgebreide maatvoeringen verwijzen wij u naar de plattegrond.

Bijzonderheden:

- Verwarming via Remeha cv-ketel uit 2019
- Geheel voorzien van kozijnen met dubbel glas
- Actieve VvE, bijdrage € 100,- per maand (bijdrage € 175,- per maand per 01-01-2026)
- Energielabel C
- Woonoppervlakte ca. 89m²
- Dakterras ca. 15m²
- Eigen grond
- In verband met het bouwjaar van de woning zal ongeacht de kwaliteit een ouderdoms- en materialenclausule in de NVM koopakte worden opgenomen
- Oplevering per direct

MEER INFORMATIE?
Op onze website www.elzenaar.nl staat de meest complete informatie over de woning. Hier kunt u ook een bezichtigingsafspraak aanvragen waarbij u het digitale woningdossier met aanvullende documenten ontvangt.

KAN IK DIT BETALEN?
Als extra service maken wij graag GRATIS EN VRIJBLIJVEND een hypotheek berekening door een van onze onafhankelijk hypotheekadviseurs. Wij kennen geen lange wachttijden waardoor vaak nog dezelfde dag een afspraak ingepland kan worden. Uiteindelijk kunnen wij indien gewenst de gehele financieringsaanvraag verzorgen.

----------------------------------------------------------------------------------------------------------------------------------------------

Deze informatie is door ons met de nodige zorgvuldigheid samengesteld. Onzerzijds wordt echter geen enkele aansprakelijkheid aanvaard voor enige onvolledigheid, onjuistheid of anderszins, dan wel de gevolgen daarvan. Alle opgegeven maten en oppervlakten zijn indicatief.


Download Brochure

Kenmerken

Vraagprijs
€ 350.000 k.k.
Bijdrage VVE
€ 100
Status
Verkocht onder voorbehoud
Aanvaarding
Per direct

Bouw

Soort appartement
Maisonnette, Appartement
Gelegen op
2e woonlaag
Soort bouw
Bestaande bouw
Bouwjaar
1910
Onderhoud binnen
Redelijk
Onderhoud buiten
Goed
Bijzonderheden
Beschermd stads- of dorpgezicht

Oppervlakten en inhoud

Woonoppervlakte
89m²
Inhoud
310m³

Indeling

Aantal kamers
4
Aantal slaapkamers
3
Aantal badkamers
1
Aantal woonlagen
2

Energie

Energielabel
C
Isolatie
Dubbel glas
Warm water
C.V.-ketel
Verwarming
C.V.-ketel
Ketel
Remeha (2019, Combi-ketel, Eigendom)

Buitenruimte

Ligging
Aan rustige weg, In woonwijk

Garage


Plattegronden

Locatie

[ { "address": "Fahrenheitstraat 122", "zipCode": "2561 EE", "city": "Den Haag", "lat": 52.0717152, "lng": 4.2764869 } ]

BUURTINFORMATIE

Den Haag, Valkenboskwartier

Inwoners

5822
Woningen

11540
Inwoners

Koop / Huur


 50% Huur 
 47% Koop

Huishoudens

 Valkenboskwartier
t.o.v
 Landelijk
.



Eenpersoon
53% - 37.6%


Geen kinderen
21% - 29%


Met kinderen
26% - 33.4%

Leeftijdsopbouw in jaren

 Valkenboskwartier t.o.v
 Landelijk
.

Bekijk verloop van de zon

Uw browser ondersteunt geen WebGL

Afspraak of contact

Uw bericht is naar ons verzonden. Wij nemen zo snel mogelijk contact met u op.

Sorry, we kunnen helaas niet met zekerheid vaststellen of u een mens of een geautomatiseerde bot/spammer bent. Hierdoor kunnen we het formulier dat u heeft ingevuld niet verzenden. Probeer het opnieuw of neem direct contact op met de makelaar via e-mail.

Er is iets mis gegaan met het versturen van het formulier.
Controleer of u alle velden (goed) heeft ingevoerd en probeer het nog een keer.

recaptcha
reCAPTCHA
PrivacyTerms

Kantoor Zuiderpark - HaagWest
info@elzenaar.nl
+31703604807

Elzenaar Makelaarskantoor