Eerbeeklaan 46

2573 HT, Den Haag (Rustenburg en Oostbroek)

Vraagprijs

€ 239.500 k.k.

Omschrijving

Verkocht in 1 dag boven de vraagprijs.

Rustenburg / Oostbroek. Royaal 3/4 kamer topappartement (79m²) met achterbalkon en vrij uitzicht over de Eerbeeklaan aan de voorzijde. Deze woning is voorzien van een doorgebroken woonkamer, degelijke keuken met apparatuur, 2 slaapkamers en een ruimebadkamer. Daarnaast is de woning geheel voorzien van kozijnen met dubbel glas, ligt op eigen grond en heeft een actieve Vereniging van Eigenaren met een meerjarenonderhoudsplan!

Enige pluspunten van de woning:
+ Riante lichte woonkamer met vrij uitzicht aan de voorzijde
+ Actieve Vereniging van Eigenaren met MJOP
+ Eigen grond

Locatie:
Gunstige ligging t.o.v. winkels (Apeldoornselaan/Dierenselaan), openbaar vervoer en diverse scholen. Groen-, sport- en recreatievoorzieningen alsmede zee, strand en duinen op slechts enkele minuten fietsen bereikbaar.

Indeling:

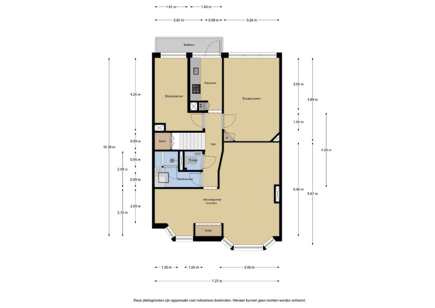
Woningentree via open portiek; gang met een diepe bergkast; woonkamer 6.00x3.48; nette keuken ca. 2.99x2.35 met een 5-pits gasfonuis met oven, afzuigkap, koel-vriescombinatie en toegang tot het balkon; 1e slaapkamer aan de voorzijde ca. 2.64x2.48; 2e slaapkamer aan de achterzijde ca. 4.44x3.34; riante nette badkamer ca. 4.00x1.97 met douche, ligbad, wastafel en wasmachine aansluiting; net separaat toilet;

Bijzonderheden:

- Verwarming via Remeha Tzerra cv-ketel uit 2018
- Voorzijde voorzien van houten kozijnen met dubbel glas
- Energielabel D
- Actieve VvE: bijdrage € 75,- per maand
- Meerjarenonderhoudsplan is beschikbaar
- Woonoppervlakte ca. 79m²
- In verband met het bouwjaar van de woning zal ongeacht de kwaliteit een ouderdoms- en materialenclausule in de NVM koopakte worden opgenomen
- Oplevering in overleg


MEER INFORMATIE?
Op onze website www.elzenaar.nl staat de meest complete informatie over de woning. Hier kunt u ook een bezichtigingsafspraak aanvragen waarbij u het digitale woningdossier met aanvullende documenten ontvangt.

KAN IK DIT BETALEN?
Als extra service maken wij graag GRATIS EN VRIJBLIJVEND een hypotheek berekening door een van onze onafhankelijk hypotheekadviseurs. Wij kennen geen lange wachttijden waardoor vaak nog dezelfde dag een afspraak ingepland kan worden. Uiteindelijk kunnen wij indien gewenst de gehele financieringsaanvraag verzorgen.

----------------------------------------------------------------------------------------------------------------------------------------------

Deze informatie is door ons met de nodige zorgvuldigheid samengesteld. Onzerzijds wordt echter geen enkele aansprakelijkheid aanvaard voor enige onvolledigheid, onjuistheid of anderszins, dan wel de gevolgen daarvan. Alle opgegeven maten en oppervlakten zijn indicatief.


Download Brochure

Kenmerken

Vraagprijs
€ 239.500 k.k.
Bijdrage VVE
€ 75
Status
Verkocht
Aanvaarding
Per direct

Bouw

Soort appartement
Portiekwoning, Appartement
Gelegen op
3e woonlaag
Soort bouw
Bestaande bouw
Bouwjaar
1927
Onderhoud binnen
Redelijk
Onderhoud buiten
Redelijk

Oppervlakten en inhoud

Woonoppervlakte
79m²
Inhoud
220m³

Indeling

Aantal kamers
3
Aantal slaapkamers
2
Aantal woonlagen
1

Energie

Isolatie
Dubbel glas
Warm water
C.V.-ketel
Verwarming
C.V.-ketel
Ketel
Remeha (2018, Combi-ketel, Eigendom)

Buitenruimte

Ligging
Aan rustige weg, In woonwijk

Plattegronden

Locatie

[ { "address": "Eerbeeklaan 46", "zipCode": "2573 HT", "city": "Den Haag", "lat": 52.0685987, "lng": 4.2839816 } ]

BUURTINFORMATIE

Den Haag, Rustenburg en Oostbroek

Inwoners

8277
Woningen

18280
Inwoners

Koop / Huur


 39% Huur 
 60% Koop

Huishoudens

 Rustenburg en Oostbroek
t.o.v
 Landelijk
.



Eenpersoon
44% - 37.6%


Geen kinderen
22% - 29%


Met kinderen
35% - 33.4%

Leeftijdsopbouw in jaren

 Rustenburg en Oostbroek t.o.v
 Landelijk
.

Bekijk verloop van de zon

Uw browser ondersteunt geen WebGL

Afspraak of contact

Uw bericht is naar ons verzonden. Wij nemen zo snel mogelijk contact met u op.

Sorry, we kunnen helaas niet met zekerheid vaststellen of u een mens of een geautomatiseerde bot/spammer bent. Hierdoor kunnen we het formulier dat u heeft ingevuld niet verzenden. Probeer het opnieuw of neem direct contact op met de makelaar via e-mail.

Er is iets mis gegaan met het versturen van het formulier.
Controleer of u alle velden (goed) heeft ingevoerd en probeer het nog een keer.

recaptcha
reCAPTCHA
PrivacyTerms

Kantoor Zuiderpark - HaagWest
info@elzenaar.nl
+31703604807

Elzenaar Makelaarskantoor