Dedemsvaartweg 396 F

2545 AL, Den Haag (Morgenstond)

Vraagprijs

€ 1.250 p.m. ex.

Omschrijving

Verhuurd

WE PLANNEN GEEN AFSPRAKEN MEER IN VANWEGE HOEVEELHEID AANVRAGEN!

Morgenstond
Op de hoek met de Hengelolaan gelegen keurige 3-kamer maisonnette op de 3e en 4e verdieping met 2 balkons. Tevens voorzien van een royaal en kindvriendelijk, gemeenschappelijk terras op de galerij en een kelderberging in de onderbouw en een lift.
Vrij uitzicht aan zowel de voor- als achterkant.

Gunstige ligging t.o.v. openbaar vervoer (voor de deur), winkels (leyweg), sportvelden (diversen) en uitvalswegen.

Indeling:

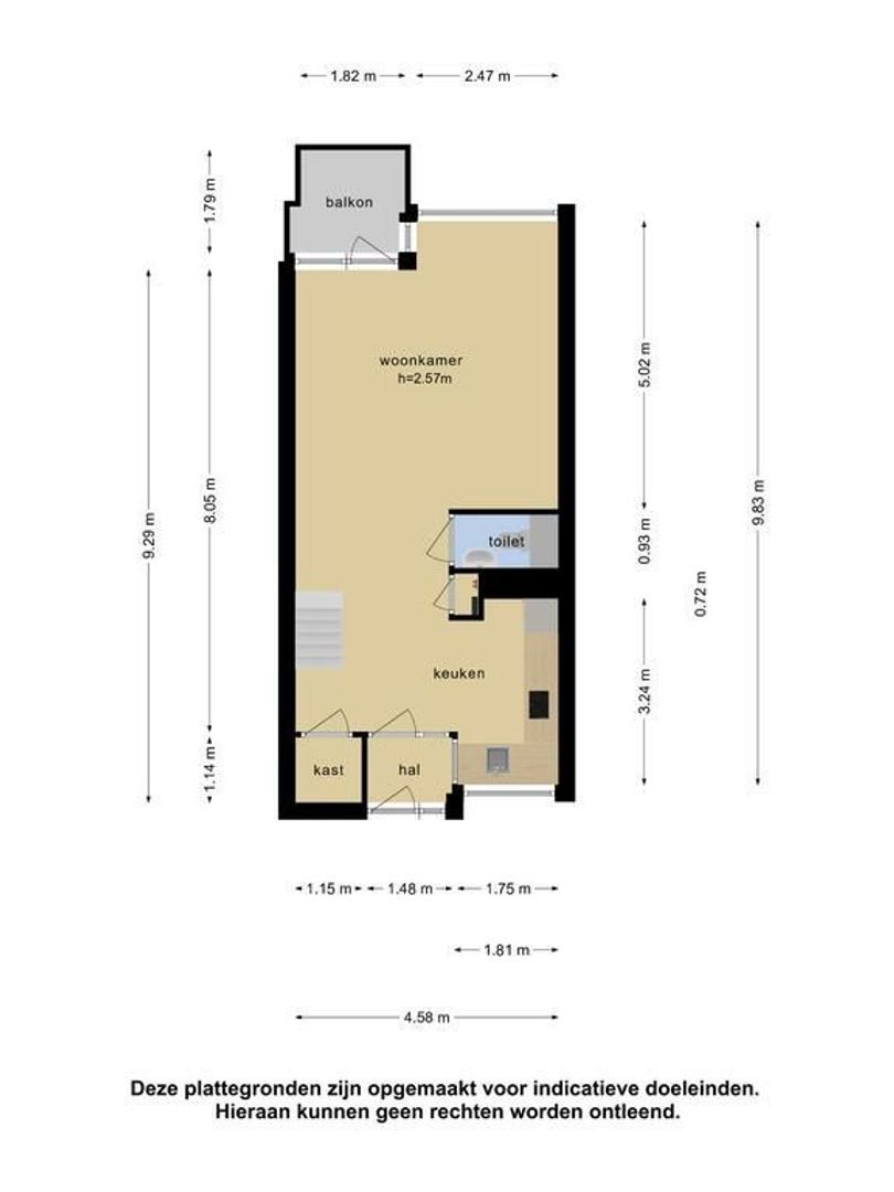
Entree via afgesloten centrale hal met lift: entree woning; halletje; meterkast; bergkast met aansluiting voor wasmachine; modern toilet met fonteintje; lichte woonkamer met laminaatvloer en toegang tot een ruim balkon (Zuiden), keurige open keuken in L-vorm opstelling met ingebouwde kookplaat, oven, afzuigkap, koelkast, vriezer, magnetron en (losse) vaatwasser (ca. 9.83x4.58).
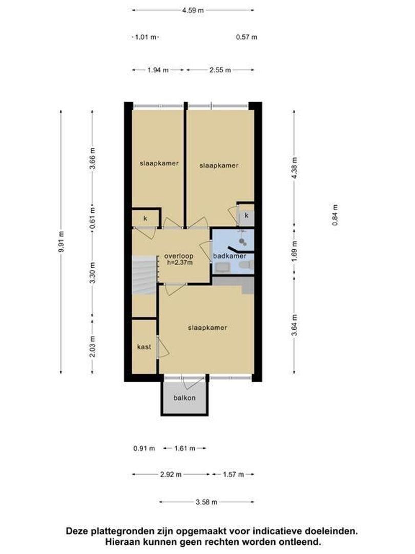
Open trap naar 2e verdieping: overloop met bergkast; keurige geheel betegelde badkamer (ca. 1.69x1.57) met douche, wastafelmeubel en toilet; achterslaapkamer (ca. 3.66x1.94); achterslaapkamer (ca. 4.38x2.55) met vaste kast; voorslaapkamer (ca. 3.64 x 3.58) met diepe inloopkast ca. 2.03x0.91 en toegang tot voorbalkon. Kelderbox in de onderbouw.

Bijzonderheden:
- Inclusief servicekosten
- Exclusief G/W/L
- Huisvestingsvergunning benodigd
- Minimale inkomenseis € 3.750,- per maand
- Borg 1 maand
- Energielabel C
- Deels gestoffeerd en gemeubileerd
- Geheel voorzien van dubbel glas; deels houten kozijnen, deels kunststof kozijnen
- Woning geheel voorzien van laminaat vloeren
- Verwarming via C.V.-Ketel (eigendom) Nefit 2017
- Goede parkeergelegenheid
- Kelderbox in de onderbouw
- Woonoppervlak ca. 87 m²
- Oplevering per direct!

Deze informatie is door ons met de nodige zorgvuldigheid samengesteld. Onzerzijds wordt echter geen enkele aansprakelijkheid aanvaard voor enige onvolledigheid, onjuistheid of anderszins, dan wel de gevolgen daarvan. Alle opgegeven maten en oppervlakten zijn indicatief.


Download Brochure

Kenmerken

Huurprijs
€ 1.250 per maand ex.
Status
Verhuurd
Aanvaarding
Per direct

Bouw

Soort appartement
Maisonnette, Appartement
Gelegen op
3e woonlaag
Soort bouw
Bestaande bouw
Bouwjaar
1966
Onderhoud binnen
Goed
Onderhoud buiten
Redelijk

Oppervlakten en inhoud

Woonoppervlakte
87m²
Oppervlakte woonkamer
25m²
Inhoud
277m³

Indeling

Aantal kamers
4
Aantal slaapkamers
3
Aantal badkamers
1
Aantal woonlagen
2

Energie

Energielabel
C
Isolatie
Dubbel glas
Warm water
C.V.-ketel
Verwarming
C.V.-ketel
Ketel
Nefit (2017, Combi-ketel, Eigendom)

Buitenruimte

Ligging
Aan rustige weg, In woonwijk
Balkon
Ja
Schuur
Box

Garage


Plattegronden

Locatie

[ { "address": "Dedemsvaartweg 396", "zipCode": "2545 AL", "city": "Den Haag", "lat": 52.0478831, "lng": 4.2676458 } ]

BUURTINFORMATIE

Den Haag, Morgenstond

Inwoners

3288
Woningen

5430
Inwoners

Koop / Huur


 77% Huur 
 16% Koop

Huishoudens

 Morgenstond
t.o.v
 Landelijk
.



Eenpersoon
58% - 37.6%


Geen kinderen
17% - 29%


Met kinderen
25% - 33.4%

Leeftijdsopbouw in jaren

 Morgenstond t.o.v
 Landelijk
.

Bekijk verloop van de zon

Uw browser ondersteunt geen WebGL

Afspraak of contact

Uw bericht is naar ons verzonden. Wij nemen zo snel mogelijk contact met u op.

Sorry, we kunnen helaas niet met zekerheid vaststellen of u een mens of een geautomatiseerde bot/spammer bent. Hierdoor kunnen we het formulier dat u heeft ingevuld niet verzenden. Probeer het opnieuw of neem direct contact op met de makelaar via e-mail.

Er is iets mis gegaan met het versturen van het formulier.
Controleer of u alle velden (goed) heeft ingevoerd en probeer het nog een keer.

recaptcha
reCAPTCHA
PrivacyTerms

Kantoor Zeeheldenkwartier - Centrum
centrum@elzenaar.nl
+31703641765

Elzenaar Makelaarskantoor