Blaricumseplein 42

2574 SP, Den Haag (Rustenburg en Oostbroek)

Vraagprijs

€ 300.000 k.k.

Omschrijving

Verkocht in 15 dagen boven de vraagprijs,

Rustenburg / Oostbroek. Zeer degelijk compleet gerenoveerd 2023/2024) royaal 4-kamer 1e etage appartement met twee slaapkamers, zonnig balkon (Zuidwesten) en vrij uitzicht over het plein. Bij de renovatie is duidelijk rekening gehouden met brandwerendheid en extra isolatie waardoor de woning is voorzien van energielabel A. Al het interne leidingwerk is vervangen en het materiaalgebruik is zeer luxe en degelijk.

Ligging:
Gunstige ligging t.o.v. winkels (winkelstraat Apeldoornselaan/Dierenselaan maar ook winkelcentrum Leyenburg), op fietsafstand van Stadscentrum en Scheveningen, voldoende openbaar vervoer op loopafstand alsmede diverse scholen en kinderdagverblijf. Speelvorzieningen voor kleine kinderen voor de deur in het plantsoen. Groen-, sport- en recreatievoorzieningen (Zuiderpark) alsmede zee, strand en duinen op enkele minuten fietsen bereikbaar.

Enige pluspunten:
- Grote uitgebouwde woonkamer
- Energielabel A
- 3 slaapkamers
- Nieuwe keuken met energielabel A apparatuur
- Sanitair 2024

Indeling:

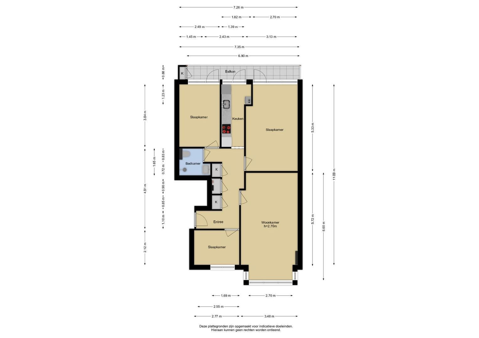
Woningentree via open portiek: entree op eerste etage, gang met twee vaste kasten en de meterkast, Royale woonkamer vanuit de woonkamer is vanuit het erkerkozijn een behoorlijk wijds uitzicht over het groene plein; vanuit de gang toegang tot de slaapkamers; grote achterkamer met deur naar balkon; slaapkamer aan de voorzijde; slaapkamer aan de achterzijde met deur naar balkon; zeer complete luxe keuken met ingebouwde koelkast; combi-oven; vaatwasser, inductie kookplaat, afzuigkap en losse wasmachine. Luxe badkamer met toilet, inloopdouche en wastafel.

Bijzonderheden

- Zeer degelijk gerenoveerd 2023/2024 zoals het hoort. Brandvertragende plafonds en deuren
- Vloeren dubbel Fermacell platen
- Geheel voorzien van kozijnen met voor dubbel HR-glas. Achterzijde tripple glas
- Muurisolatie en vloerisolatie
- Actieve VvE: bijdrage € 90,14 per maand
- Meerjaren onderhoudsplan aanwezig
- Eeuwigdurend erfpachtrecht: canon € 197,51 + € 16,00 beheerkosten per half jaar. Grondwaarde: € 9.405,00 eerstvolgende canonherziening: 01-01-2029)
- Woonoppervlakte ca. 76m²
- Niet-bewoningsclausule van toepassing
- In verband met het bouwjaar van de woning zal ongeacht de kwaliteit een ouderdoms- en materialenclausule in de NVM koopakte worden opgenomen
- Oplevering per direct

_______________________________________________________________________________________________

MEER INFORMATIE?
Op onze website www.elzenaar.nl staat de meest complete informatie over de woning. Hier kunt u ook een bezichtigingsafspraak aanvragen waarbij u het digitale woningdossier met aanvullende documenten ontvangt.

KAN IK DIT BETALEN?
Als extra service maken wij graag GRATIS EN VRIJBLIJVEND een hypotheek berekening door een van onze onafhankelijk hypotheekadviseurs. Wij kennen geen lange wachttijden waardoor vaak nog dezelfde dag een afspraak ingepland kan worden. Uiteindelijk kunnen wij indien gewenst de gehele financieringsaanvraag verzorgen.

Deze informatie is door ons met de nodige zorgvuldigheid samengesteld. Onzerzijds wordt echter geen enkele aansprakelijkheid aanvaard voor enige onvolledigheid, onjuistheid of anderszins, dan wel de gevolgen daarvan. Alle opgegeven maten en oppervlakten zijn indicatief.


----------------------------------------------------------------------------------------------------------------------------------------------


Download Brochure

Kenmerken

Vraagprijs
€ 300.000 k.k.
Bijdrage VVE
€ 90
Status
Verkocht
Aanvaarding
In overleg

Bouw

Soort appartement
Portiekwoning, Appartement
Gelegen op
2e woonlaag
Soort bouw
Bestaande bouw
Bouwjaar
1934
Onderhoud binnen
Uitstekend
Onderhoud buiten
Goed

Oppervlakten en inhoud

Woonoppervlakte
76m²
Inhoud
264m³

Indeling

Aantal kamers
4
Aantal slaapkamers
3
Aantal badkamers
1
Aantal woonlagen
1

Energie

Energielabel
A
Isolatie
Muurisolatie, Vloerisolatie, Dubbel glas, Driedubbel glas, HR-glas
Warm water
C.V.-ketel
Verwarming
C.V.-ketel
Ketel
(Combi-ketel, Eigendom)

Buitenruimte

Ligging
Aan rustige weg, In woonwijk, Vrij uitzicht
Balkon
Ja

Garage


Plattegronden

Locatie

[ { "address": "Blaricumseplein 42", "zipCode": "2574 SP", "city": "Den Haag", "lat": 52.0630125, "lng": 4.2777539 } ]

BUURTINFORMATIE

Den Haag, Rustenburg en Oostbroek

Inwoners

8277
Woningen

18280
Inwoners

Koop / Huur


 39% Huur 
 60% Koop

Huishoudens

 Rustenburg en Oostbroek
t.o.v
 Landelijk
.



Eenpersoon
44% - 37.6%


Geen kinderen
22% - 29%


Met kinderen
35% - 33.4%

Leeftijdsopbouw in jaren

 Rustenburg en Oostbroek t.o.v
 Landelijk
.

Bekijk verloop van de zon

Uw browser ondersteunt geen WebGL

Afspraak of contact

Uw bericht is naar ons verzonden. Wij nemen zo snel mogelijk contact met u op.

Sorry, we kunnen helaas niet met zekerheid vaststellen of u een mens of een geautomatiseerde bot/spammer bent. Hierdoor kunnen we het formulier dat u heeft ingevuld niet verzenden. Probeer het opnieuw of neem direct contact op met de makelaar via e-mail.

Er is iets mis gegaan met het versturen van het formulier.
Controleer of u alle velden (goed) heeft ingevoerd en probeer het nog een keer.

recaptcha
reCAPTCHA
PrivacyTerms

Kantoor Zuiderpark - HaagWest
info@elzenaar.nl
+31703604807

Elzenaar Makelaarskantoor