Berkenbosch Blokstraat 85

2586 HE, Den Haag (Scheveningen)

Vraagprijs

€ 550.000 k.k.

Omschrijving

Rijslag-Scheveningen.
Met schitterend uitzicht op de Mets tennisbanen royaal en verzorgd 4 kamer, 1e etage appartement met ca 105m² !!! woonoppervlakte een lift en kelderberging. Het appartementencomplex uit 1994 ligt in een rustige straat. Geen overburen dus met vrij uitzicht op de tennis activiteiten. Erfpacht eeuwigdurend afgekocht.

Pluspunten:
+ Met Lift
+ 3 Slaapkamers en balkon
+ Nabij strand, boulevard en duinen
+ Rustige straat, maar centraal gelegen
+ Sportief uitzicht

Locatie:
Wandel de straat uit naar het Westen en je staat bijna op de boulevard, het strand en het Kurhaus, Circustheater, Holland Casino en de bioscoop. Om de hoek ligt de gezellige Stevinstraat met elke donderdag een versmarkt en diverse winkels. Voor dagelijkse boodschappen kun je terecht bij de supermarkt of op de veelzijdige Keizerstraat met (vers)speciaalzaken.
Openbaar vervoer vind je onder andere op de Gevers Deynootweg (tram 1 en bus 22). Zin in groen? Het Westbroekpark met het Rosarium en de botenverhuur ligt op zeer korte loopafstand en biedt in de zomer leuke evenementen.
Tegenover het complex liggen de tennisbanen van De Mets waar je in hun Brasserie ook een hapje kunt eten.

Indeling:

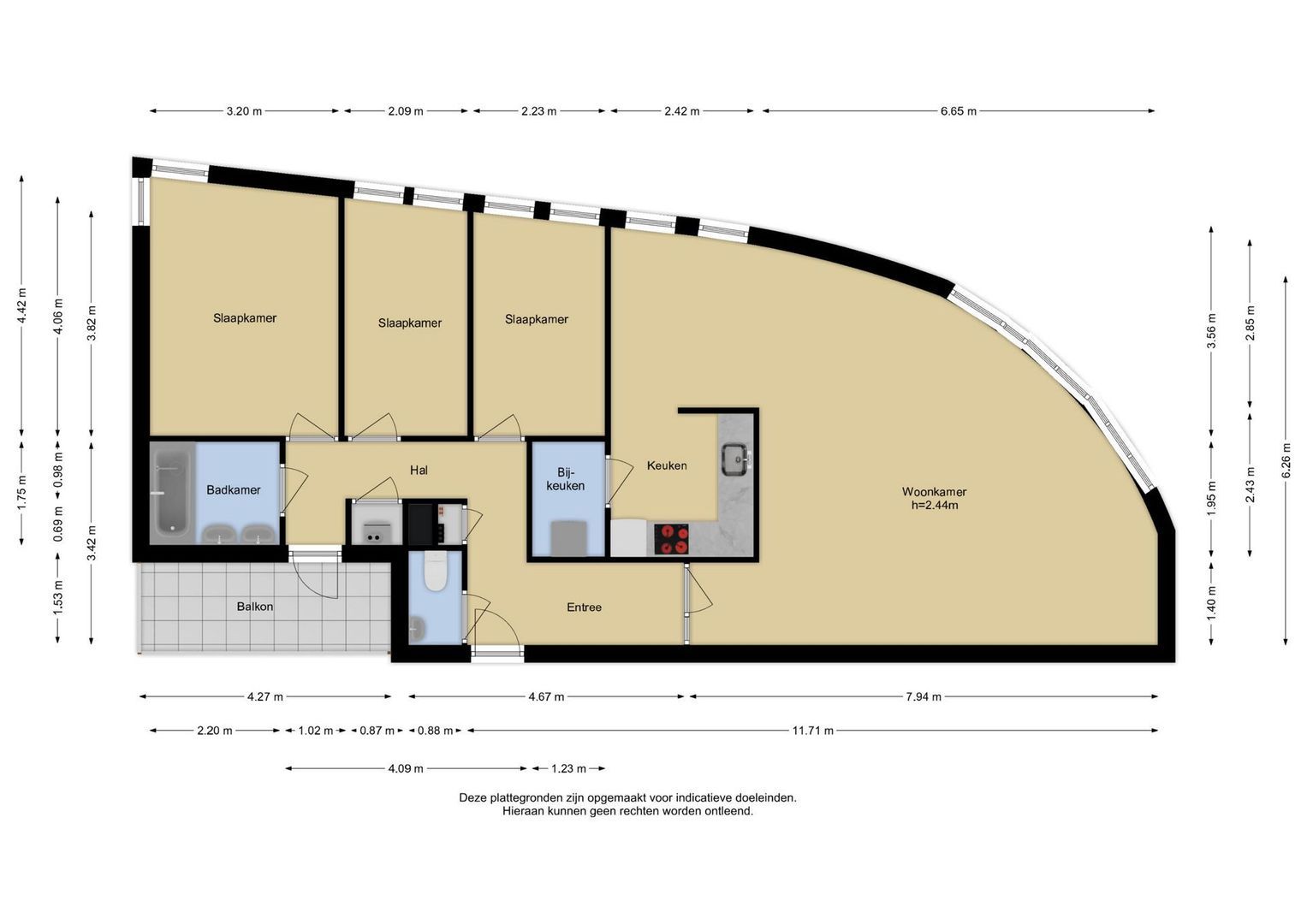
Woningentree via gesloten portiek met trappenhuis en lift naar de 1e etage; galerij met de woningentree; gang met toegang tot alle vertrekken en meterkast; riante woonkamer met een ronding waardoor er een panoramisch uitzicht is. Grote raampartijen. open keuken met inbouwapparatuur, 4 pits-gaskookplaat, afzuigkap, oven-magnetroncombi, vaatwasser en toegang tot bijkeuken; 1e slaapkamer aan de voorzijde; 2e slaapkamer aan de voorzijde; 3e slaapkamer aan de voorzijde; nette badkamer met ligbad met handdouche en 2 wastafels. Separaat toilet met fonteintje; via hal toegang tot het balkon aan de achterzijde.

Daarnaast beschikt het appartement over een ruime berging in de onderbouw van het complex.

Voor uitgebreide maatvoering verwijzen wij u naar de plattegrond.

Bijzonderheden:

- Nieuw laminaat in woonkamer, keuken en gang
- Verwarming via Remeha cv-ketel uit 2024
- Geheel voorzien van kozijnen met dubbel glas
- Actieve VVE € 263,14 per maand
- Meerjarenonderhoudsplan is beschikbaar
- Energielabel C
- Bouwjaar 1994
- Eeuwigdurend recht van erfpacht met afgekochte erfpachtcanon
- Lift
- Woonoppervlakte ca. 105 m²
- Niet-bewoningsclausule van toepassing
- In verband met het bouwjaar van de woning zal ongeacht de kwaliteit een ouderdoms- en materialenclausule in de NVM koopakte worden opgenomen
- Oplevering per direct


MEER INFORMATIE?
Op onze website www.elzenaar.nl staat de meest complete informatie over de woning. Hier kunt u ook een bezichtigingsafspraak aanvragen waarbij u het digitale woningdossier met aanvullende documenten ontvangt.

KAN IK DIT BETALEN?
Als extra service maken wij graag GRATIS EN VRIJBLIJVEND een hypotheek berekening door een van onze onafhankelijk hypotheekadviseurs. Wij kennen geen lange wachttijden waardoor vaak nog dezelfde dag een afspraak ingepland kan worden. Uiteindelijk kunnen wij indien gewenst de gehele financieringsaanvraag verzorgen.

----------------------------------------------------------------------------------------------------------------------------------------------

Deze informatie is door ons met de nodige zorgvuldigheid samengesteld. Onzerzijds wordt echter geen enkele aansprakelijkheid aanvaard voor enige onvolledigheid, onjuistheid of anderszins, dan wel de gevolgen daarvan. Alle opgegeven maten en oppervlakten zijn indicatief.


Download Brochure

Kenmerken

Vraagprijs
€ 550.000 k.k.
Bijdrage VVE
€ 263
Status
Beschikbaar
Aanvaarding
Per direct

Bouw

Soort appartement
Portiekflat, Appartement
Gelegen op
2e woonlaag
Soort bouw
Bestaande bouw
Bouwjaar
1994
Onderhoud binnen
Goed
Onderhoud buiten
Goed
Bijzonderheden
Beschermd stads- of dorpgezicht

Oppervlakten en inhoud

Woonoppervlakte
105m²
Inhoud
354m³

Indeling

Aantal kamers
4
Aantal slaapkamers
3
Aantal badkamers
1
Aantal woonlagen
1
Voorzieningen
Mechanische ventilatie, Lift

Energie

Energielabel
C
Isolatie
Muurisolatie, Dubbel glas
Warm water
C.V.-ketel
Verwarming
C.V.-ketel
Ketel
Remeha (2024, Combi-ketel, Eigendom)

Buitenruimte

Ligging
Aan drukke weg, In woonwijk, Vrij uitzicht
Balkon
Ja
Schuur
Box
Faciliteiten schuur
Voorzien van elektra

Garage


Plattegronden

Locatie

[ { "address": "Berkenbosch Blokstraat 85", "zipCode": "2586 HE", "city": "Den Haag", "lat": 52.1079579, "lng": 4.2860679 } ]

BUURTINFORMATIE

Den Haag, Scheveningen

Inwoners

3237
Woningen

5380
Inwoners

Koop / Huur


 41% Huur 
 56% Koop

Huishoudens

 Scheveningen
t.o.v
 Landelijk
.



Eenpersoon
53% - 37.6%


Geen kinderen
25% - 29%


Met kinderen
23% - 33.4%

Leeftijdsopbouw in jaren

 Scheveningen t.o.v
 Landelijk
.

Bekijk verloop van de zon

Uw browser ondersteunt geen WebGL

Afspraak of contact

Uw bericht is naar ons verzonden. Wij nemen zo snel mogelijk contact met u op.

Sorry, we kunnen helaas niet met zekerheid vaststellen of u een mens of een geautomatiseerde bot/spammer bent. Hierdoor kunnen we het formulier dat u heeft ingevuld niet verzenden. Probeer het opnieuw of neem direct contact op met de makelaar via e-mail.

Er is iets mis gegaan met het versturen van het formulier.
Controleer of u alle velden (goed) heeft ingevoerd en probeer het nog een keer.

recaptcha
reCAPTCHA
PrivacyTerms

Kantoor Zeeheldenkwartier - Centrum
centrum@elzenaar.nl
+31703641765

Elzenaar Makelaarskantoor